Строително-инвестиционна компания МУЛТИБИЛДИНГ предлага за продажба.
НОВА БУТИКОВА СГРАДА С ВИСОК КЛАС ИЗПЪЛНЕНИЕ: ДИА IV
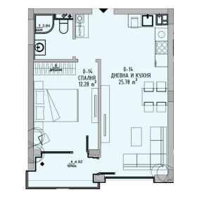
Апартамент: 14
ЗП: 53.93 кв.м.
Общи части: 8.56 кв.м.
ЗП + Общи части: 62.49 кв.м.
Изложение: Изток/Север
Индивидуални схеми на плащане.
Предлагаме апартамент в модерна жилищна сграда с отлична локация и първокласни материали.
Характеристики на сградата: 45 апартамента на 4 жилищни етажа, ниво -1 (сутерен), 7 подземни паркоместа, 8 външни паркоместа, 29 гаража (повечето двойни).
Строителство и материали: Бутиково изпълнение с функционални разпределения, кофражни системи от последно поколение, тухли Wienerberger Porotherm, Mladost или еквивалент. Гипсови мазилки и подове от най-висок клас, стъклени парапети.
Енергийна ефективност: Клас А, вентилируема фасада с керамика и топлоизолация, френски прозорци със седемкамерна дограма и енергийни стъкла SCHÜCO.
Общи части и удобства: Луксозно завършени общи части, вход и фоайе по дизайнерски проект, асансьор последно поколение, гаражи и паркоместа (подземни и надземни), висок клас външна входна врата.
Конструкция: Монолитна стоманобетонна конструкция, вътрешни преградни стени от червена тухла Wienerberger.
За повече информация свържете се с нас!
📞 Тел.: 0877640606
📧 [email protected]
🌐 multibuilding.bg







