Най-ниска цена за района!
PRO HOME Real Estate Ви представя нова сграда с разрешение за строеж в жк.Левски.
Малка бутикова сграда на метри от училище, хранителни магазини и Ботевградско шосе.
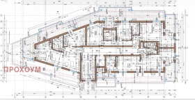
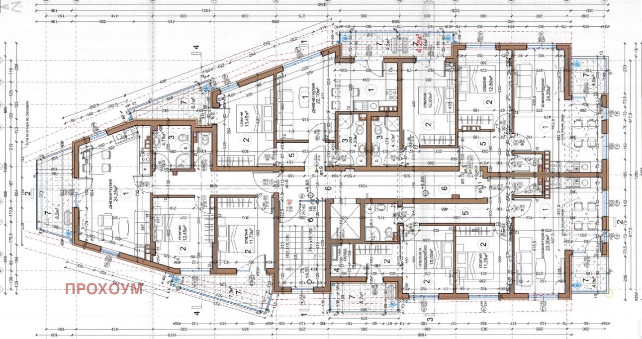
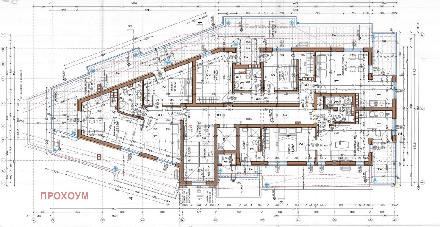
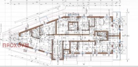
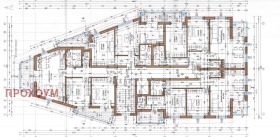
Апартамент 17 е ситуиран на ет.5/6 с изложение И/С/З и следното разпределение: входно антре, спалня, баня с тоалетна и дневна с кухненски бокс с излаз към тераса 5.5м2.
В сградата се предлагат и други двустайни апартаменти:
Ап.5 с площ, 80м2, / 139917
Ап.14, с площ, 81м2 / 141067
Не пропускай шанса да закупиш мечтания дом, свържи се с водещия консултант на офертата Йордан Тодоров - 0878811140







