Предлагаме за продажба Двустаен апартамент в най-новия ни проект - ЭΩN- Футуристична, модерна сграда, която се намира зад стадион Арена Созопол . Сградата е със започнало строителство и ще бъде завършена през лято 2026 г. Предлагаме двустайни и тристайни апартаменти с различни квадратури и изложения.
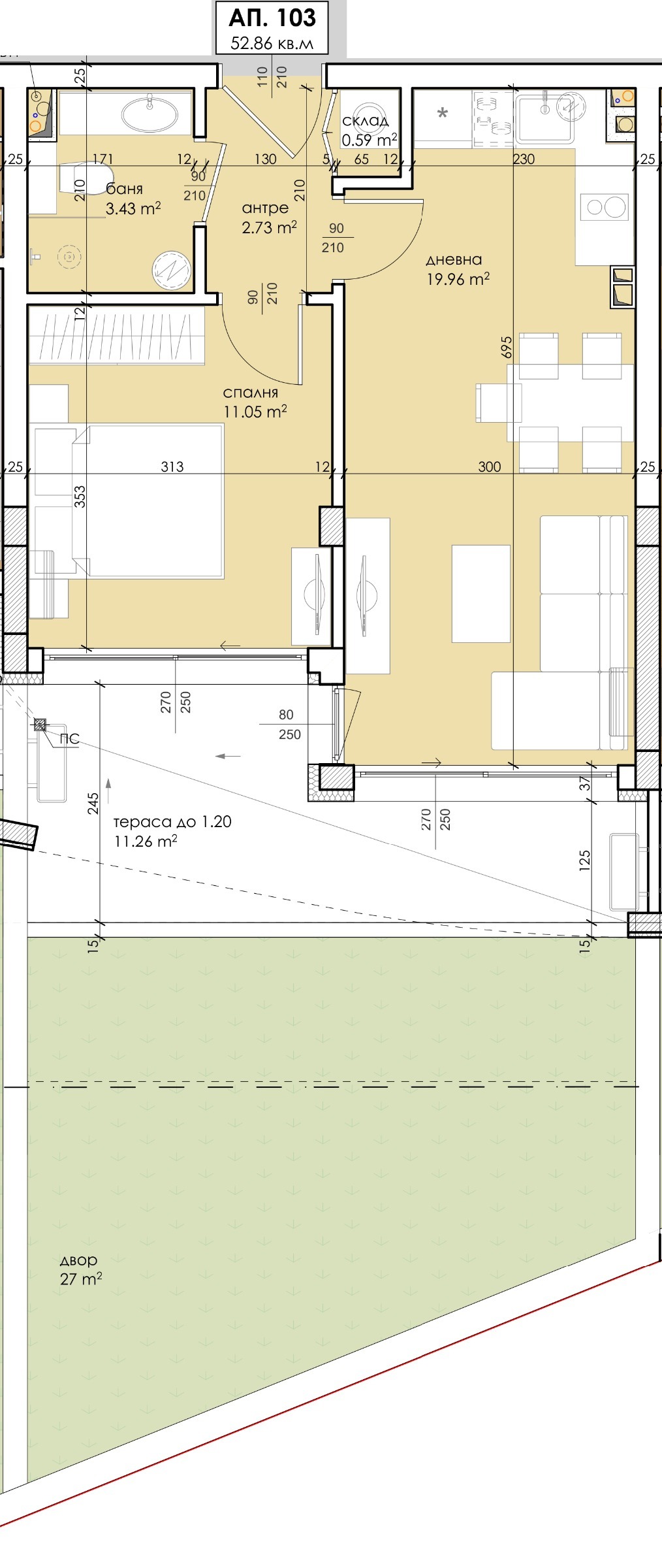
Апартамент 103 се състои от коридор, дневна с кухня и трапезария, спалня, баня с тоалетна, голяма тераса- 11.26 кв.м. и частен двор - 27 кв.м. Функционалното разпределение и голямата външна площ, подходяща за плажуване, барбекю, джакузи и др. дават възможност за отлична почивка и успешна инвестиция.
Планът на апартамента можете да разгледате на: https://sozopolresidence.com/sgrada-eon/prodazhbi/etazh-1/apartament-103/
Сградата е със започнало строителство и ще бъде завършена през лято 2026 г. Изпълнява се с висок клас строителни материали, както и останалите сгради под бранда на Созпол Резиденс. Стълбища от естествен камък, настилки от италиански гранитогрес, асансьор с луксозна кабина, който стига и до подземния гараж, парапети от стъкло и алуминий, тухли от най-високия клас на австрийската марка Winerberger, дограма Salamander, oптичен интернет, видеодомофони и кодиран достъп, соларно фасадно осветление, сензори за движение - това са само част от детайлите, които отличават ЭΩN. Подходяща е за целогодишно живеене, няма Такса Поддръжка. Схемата на плащане е 30%/40/20/10 % или по договаряне. Разполагаме с външни и подземни паркоместа, които се закупуват допълнително.



