Представям Ви южен, среден с правилни форми и хубаво разпределение двустаен апартамент в кв. Дървеница!!!
На 150 м. от Метростанция Мусагеница, заобиколен само от нови сгради и зеленина!
Намира се на границата на двата квартала Дървеница и Мусагеница!
Наблизо са парк Въртопо, магазини Била и Фантастико, училища, детски градини и др.
Бутикова сграда с изтънчена и модерна визия!
С Акт - 15, Акт - 16 - до края на 2025г.
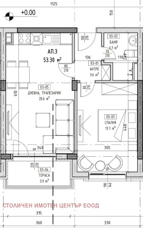
Разпределение: коридор, дневна с кухненски бокс и трапезария около - 21 кв.м, спалня около - 14 кв.м, баня с тоалетна и тераса. Към апартамента има и мазе - 2,5 кв.м.
Отоплението е решено на ток с климатици - най изгодния вариант!
За нашите клиенти агенцията предлага безплатно съдействие за кредит от лицензиран кредитен консултант с преференциални условия от всички банки!
За повече информация за имота или организиране на оглед не се колебайте и се свържете с мен на тел: 0886664406
Виж всички обяви в vladimir85.bazar.bg или тук







