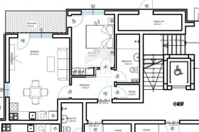
ЕРА Вива продава двустаен апартамент в новостроящ се луксозен комплекс до ВСУ 'Черноризец Храбър', гр. Варна. Имотът е с площ от 68 кв.м. и включва светла дневна с кухненски бокс /22.30 кв.м./, спалня /11.60 кв.м./, сервизно помещение /4.40 кв.м./ и веранда /6.40 кв.м./. Жилището се издава по БДС - на шпакловка и замазка, с висококачествена PVC дограма с троен стъклопакет, както и с подготвени балкони с хидроизолация и мразоустойчив гранитогрес. Идеално място за живеене, почивка или доходоносна инвестиция.
Сградата впечатлява с модерна визия, луксозно изпълнение и внимание към детайла. Строителството се отличава с висок клас материали, а за максимален комфорт на обитателите ще бъде на разположение басейн в комплекса. Предвидена е възможност за закупуване на външни и подземни паркоместа. Предлагат се двустайни апартаменти на цени от 83 450 евро и тристайни на цени от 123 500 евро, с гъвкави схеми на плащане и възможност за разсрочено финансиране.
Комплексът се намира в тиха и озеленена зона, само на няколко минути пеша от плаж Кабакум и в непосредствена близост до ВСУ Черноризец Храбър . Локацията предлага отлично съчетание между спокойствие, природа и удобен достъп до градската инфраструктура на Варна.
Оферта 1009649







