Ера Черно море предлага за продажба двустаен апартамент в новострояща се сграда.
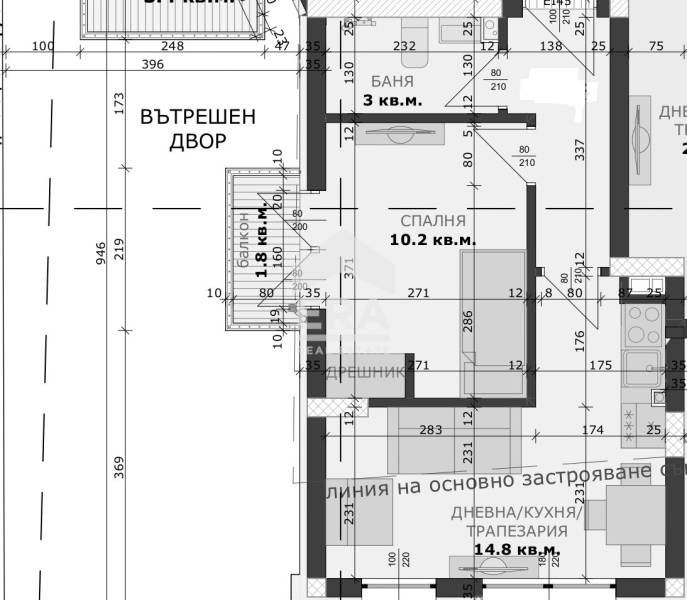
Имотът е разположен на втори етаж и е с площ 48.97 кв.м.
Състои се от: дневен тракт с кухня, спалня, баня с тоалет, тераса.
Апартаментът се издава по БДС.
Акт 14 - януари 2026г.
Сградата е седеметажна с асансьор, проектирана с модерна визия и общи части.
Гъвкави схеми на плащане.
Подземни паркоместа на цена 25 000 евро.
В близост до Дентален факултет, Кампус 90, училища и детски градини.
Оферта 3101434







