📢 ДИРЕКТНО ОТ ИНВЕСТИТОР! БЕЗ КОМИСИОН КЪМ АГЕНЦИЯТА! 📢 ОФЕРТА: 15712
◼ Агенция за недвижими имоти 'ГОЛД ИМОТИ', има удоволствието да Ви представи новостроящ се комплекс в кв. Гагарин!
◼ Предлагаме Ви едностайни, двустайни, тристайни и четиристайни апартаменти с функционални разпределения:
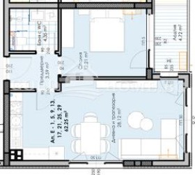
- Двустайните се състоят от: входно антре, всекидневна с кухненски бокс и трапезария, спалня, баня с тоалетна и тераса.
Можем да предложим различни модули:
- 69,72 кв.м. - 66 931 евро;
- 74,42 кв.м. - 71 443 евро;
- 75,00 кв.м. - 72 000 евро;
- 77,45 кв.м. - 74 352 евро;
- 77,94 кв.м. - 74 822 евро;
- 79,25 кв.м. - 76 080 евро;
✔️Степен на завършеност :
Стени - турбозолна мазилка , Под - замазка, изградена ВиК до тапа, ел. инсталация с монтирани ключове и контакти и ел. табла, окабеляване за телефон и интернет, дограма с троен стъклопакет, входни блиндирани врати.
✔️ За проекта :
-Всеки апартамент е създаден с прецизност и грижа към детайла, отговаряйки на изискванията на съвременния градски начин на живот.
-Използваните висококачествени материали и съвременен дизайн осигуряват надеждност, комфорт и дълготрайност.
➡️ Схеми на плащане:
- АТРАКТИВНА ЦЕНА - 960евро/кв.м. при плащане на 80% от сумата при подписване на предварителен договор, за сигурност на купувача 20% остават за АКТ 16!
- Редовна цена от 980евро/кв.м. при разсрочено плащане в етапа на строителството.
📌Етап на строителство:
-Към момента са в ход продажби на етап проект . ПУСКОВ СРОК 60 месеца от откриване на строителната площадка !
🚗БЕЗПРОБЛЕМНО ПАРКИРАНЕ!
- Възможност за закупуване на подземни паркоместа - 16 000 и надземни паркоместа - 13 000 и партерни гаражи на цени започващи от 18 000
🎯 Комуникативна локация:
В близост до Международен панаир - Пловдив , Т Маркет и LIDL, достъп до масов градски транспорт, множество ресторанти, магазини, училища и детски градини!
➡️ 'ГОЛД ИМОТИ' предлага безплатно професионално кредитно посредничество чрез Credit Center:
- Изготвяне на оферти от водещи банки
- Най-добри условия, съобразени с вашия профил
- Без излишни разходи и време за посещения на различни банкови клонове
➡️ Още атрактивни и актуални оферти може да разгледате на нашият сайт : goldhome.bg
📱 Не пропускайте! За повече информация и огледи, свържете се с нас. Вашият нов дом ви очаква!







