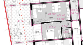
Жилището е разположено на партерен етаж и се състои от: просторен дневен тракт ( 28.7 кв.м. ) с излаз към собствена градинка ( 41.2 кв.м.), спалня ( 13 кв.м.), баня с тоалетна и коридор.
Разположена в най-елитния квартал на Варна, тази уникална сграда предлага ексклузивност, която рядко се намира на пазара.
От елегантната архитектура до безупречните довършителни работи, всеки детайл е създаден, за да ви осигури несравнимо усещане.
Фасада
Висококачествена фасада, завършена с конпозитно покритие и керамика. Козирки от алуминиев композит или подобен материал
Дограма
Алуминиева дограма с троен стъклопакет.
Локация
Локацията се отличава с ограничена възможност за ново строителство, което я превръща в изключително търсена и съответно все по-ценна с всяка изминала година.
За удобство на собствениците са предвидени открити и закрити паркоместа, осигуряващи сигурно и лесно паркиране по всяко време.
За повече информация и огледи, моля свържете се с нас на : 0895606434
Виж всички обяви в sevenkeys_7.bazar.bg или тук







