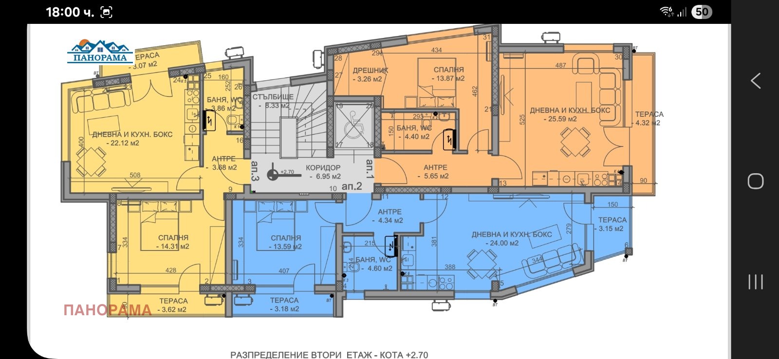
Агенция Панорама продава двустаен апартамент в строеж в квартал Коматево.Площта на апартамента е 76,57кв.м. с общите части.ЗП-62,61м2.Кооперацията е малка само с 11 апартамента Тихо и спокойно място за живеене.
Характеристика на жилището: Просторна дневна с бокс-22.12м2, спалня-14.31м2, две тераси,антре,баня с тоалетна.



