БИЛДИНГ БОКС предлага за продажба двустаен апартамент в новострояща се жилищна сграда.
ЛОКАЦИЯ : Жилищната сграда се намира в кв. Владиславово. Локация с бърз достъп до главен булевард, спирки на градски транспорт, търговски обекти, медицински центрове.
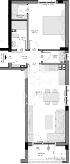
РАЗПРЕДЕЛЕНИЕ : Всекидневна с кухненски бокс с площ от 22.40 кв.м., - спалня 13.10 кв.м., антре, баня и тоалетна, килер.
ЕТАЖНОСТ : Етаж 3 от 5
ИЗЛОЖЕНИЕ : Североизток/Запад
ОТОПЛЕНИЕ : Електричество
ПАРКИРАНЕ : Налични подземни паркоместа, гаражи, както и външни паркоместа, които могат да бъдат закупени допълнително.
ЕТАП НА СТРОИТЕЛСТВО: С разрешение за строеж
СГРАДА : Сградата е проектирана на 5 жилищни етажа, с общо 42 апартамента и 2 офиса. Апартаментите разполагат с функционални разпределения.
ИНВЕСТИТОР: Инвеститор с дългогодишен опит и утвърден в сферата на жилищно, промишлено строителство, както и в ремонти на имоти и съоръжения.
Билдинг Бокс предоставя безплатна консултация и съдействие при финансиране на избрания от Вас имот.
Оферта 25913







