Двустаен апартамент в комплекс Towers, ж.к. Младост, Варна
Апартаментът е разположен на 4-ти етаж от 18 и предлага западно изложение с много светлина и комфорт. С площ от 69 кв.м., имотът е подходящ както за семейно жилище, така и за инвестиция.
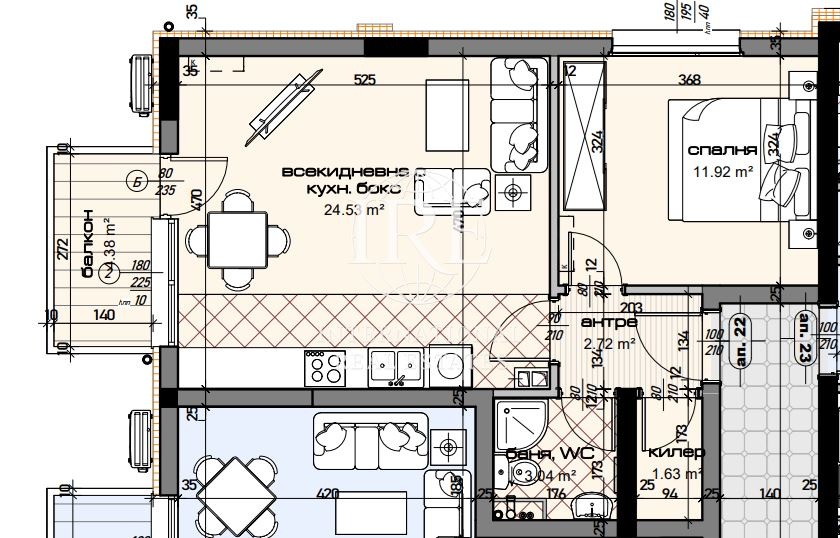
Разпределение:
Всекидневна с кухненска част 24.5 кв.м.
Спалня 12 кв.м.
Баня с WC
Килер
Входно антре
Тераса с излаз от всекидневната
Допълнителни предимства:
Възможност за закупуване на външно паркомясто на цена 16 000 евро
Схема на плащане в 3 вноски: ПД, АКТ14 и АКТ15
Всички общи части на сградата са луксозно завършени
Монтирани изводи за климатици във всички стаи
За комплекса:
Комплекс Towers се състои от две сгради по 18 етажа с общо 378 апартамента. Паркирането е организирано с 246 открити паркоместа, 67 места в покрит паркинг и 73 гаражни клетки. На терен от 10 декара комплексът разполага с парк за отдих, хранителен магазин и просторни търговски площи.
Локация и удобства:
Комплексът се намира в предпочитания за живеене квартал Младост. Районът предлага хипермаркети, търговски центрове, училища, детски градини, поликлиника и развита транспортна инфраструктура.
Степен на завършеност:
Коридори, кухня и стаи: под циментова замазка, стени бяла гипсова мазилка, таван гипсова шпакловка
Санитарен възел: стени и таван мазилка, под замазка, без санитарно обзавеждане
Ел.инсталация: вътрешна и външна 100% завършени (вкл. електромер)
ВиК: външна 100% завършена с главен водомер, вътрешна на тапа
Входна врата: висок клас, блиндирана
За строителя:
Фирмата има дългогодишен професионален опит и предлага цялостен процес от закупуване на терени, проектиране и строителство на жилищни сгради, до довършителни работи по избор на клиента с висококачествени материали, осигуряващи енергийна ефективност и дълготрайност на жилищата.
За повече информация и организиране на оглед, моля свържете се с нас на посочения телефон и цитирайте код на обявата: 0149.
International Real Estate предлага пълно съдействие по целия процес на покупко-продажбата съдействаме при кредитиране, извършваме проверка на имота и работим с всички водещи банкови институции в страната. Ще бъдем до Вас на всяка стъпка по пътя към Вашия нов дом!
Виж всички обяви в international.bazar.bg или тук
        
       
         
         
         
             
             
            






