Агенция Ронева предлага просторен двустаен апартамент в новострояща се сграда в кв. Владиславово.
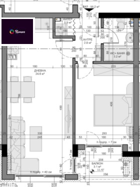
Жилището е разположено на пети жилищен етаж от пет и се състои от антре, просторна всекидневна с кухненски бокс, спалня, баня с тоалет в едно, килер и тераса.
Разпределението е функционално, помещенията са светли, с правилни форми, което улеснява проектирането и реализирането на интериорните решения.
В сградата се предлагат различни по размер двустайни и тристайни апартаменти, както и открити и закрити паркоместа.
Околоблоковите пространства в комплекса са проектирани с внимание към детайла, модерни цветови решения и стилни линии, което допринася за комфорта на живущите.
Местоположението на сградата е в близост до ключови булеварди, търговски обекти от различен тип, училища, детски градини, медицински център и др.
Инвеститорът е заложил на висок клас строителни материали и технологии, отговарящи на най-новите тенденции в бранша. Сградата се отличава с отлична топло- и шумоизолация, висок клас прозоречни системи и безкомпромисно изпълнение на всички етапи от строителството.
Предвидени са три схеми на плащане според предпочитанията на клиента.
При избор на имот винаги може да разчитате на безплатна консултация от специалистите от РОНЕВА ООД. Предлагаме също така и съдействие за отпускане на банков кредит и помощ при сключване на сделки и подготвяне на нужната документация.
ОФЕРТА 80305
www.roneva.bg







