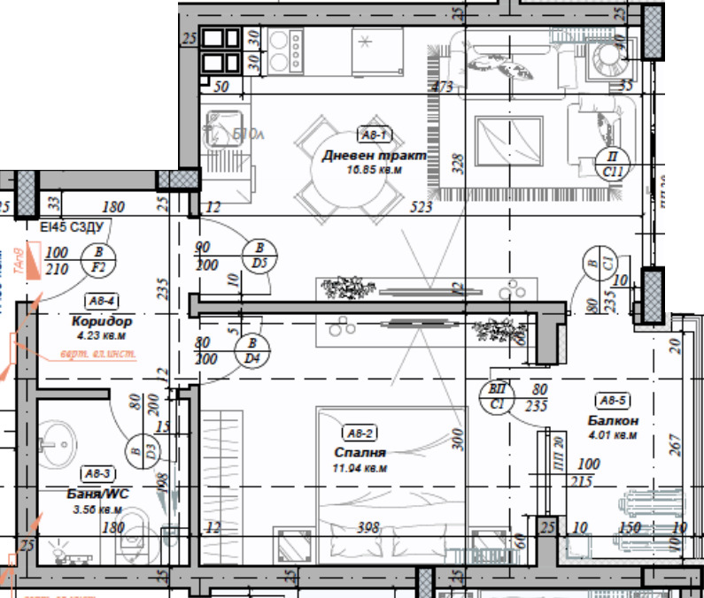
предлагаме Ви за продажба двустаен апартамент в нова, модерна сграда с Акт 16, отличаваща се с високо качество на изпълнение и внимание към детайла. Жилището е със застроена площ от 48 кв.м. и завършено до ключ готово за нанасяне веднага след покупката.
Разпределението е функционално, удобно и както следва: просторна дневна 16 кв.м., с достатъчно място за кухня и кът за отдих, светла спалня 12 кв.м., осигуряваща комфорт и тишина, баня с тоалетна 3.5 кв.м., изградена с висококачествени материали, балкон 4 кв.м., с източно изложение, осигуряващо приятна сутрешна светлина и прохладни следобеди. Към апартамента има и изба 2.5 кв.м.
Сградата разполага с асансьор, контрол на достъпа и поддържани общи части. Локацията предлага тиха и спокойна среда, съчетана с удобен достъп до транспорт, магазини, училища и фитнес.
Този апартамент е отличен избор както за собствено ползване, така и за инвестиция с цел отдаване под наем.
Възможност за закупуване на паркомясто в подземен гараж.
За повече информация и оглед се свържете с нас 0884788229
Реф. номер: 90049
Виж всички обяви в roneva.bazar.bg или тук







