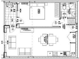
ЕRA Парадайс Ви предлага за продажба двустаен апартамент в нова, бутикова сграда (с Акт 15) в кв. Възраждане - 2, гр. Варна. Жилището е със застроена площ от 60 кв. м (66 кв. м с ОЧ) и се състои от дневна с кухненска част и трапезария (24 кв. м), спалня (12 кв. м), баня с тоалетна (3 кв. м), балкон с достъп от дневната и спалнята (4 кв. м) и коридор (3 кв. м). Изложението е източно. Ще бъде издадено по БДС - на шпакловка и замазка, с поставена ПВЦ дограма и блиндирана входна врата.
Сградата е модерна, с контролиран достъп, луксозни общи части и асансьор. Използваните материали и технологии са съобразени с последните иновации в строителния бранш, гарантирайки устойчивост и енергийна ефективност. Предстои да бъде въведена в експлоатация до края на 2025-та г.
Районът с много добре изградена инфраструктура. В близост се намират Парк Възраждане, няколко големи супермаркета, Делта Планет Мол, училище, детска градина, заведения за хранене и удобни спирки на градския транспорт. Бърз достъп до всички точки на града.







