Предлагаме за продажба двустаен апартамент в предстоящо строителство в град Созопол.
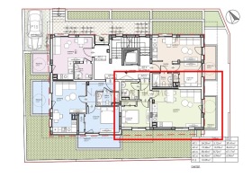
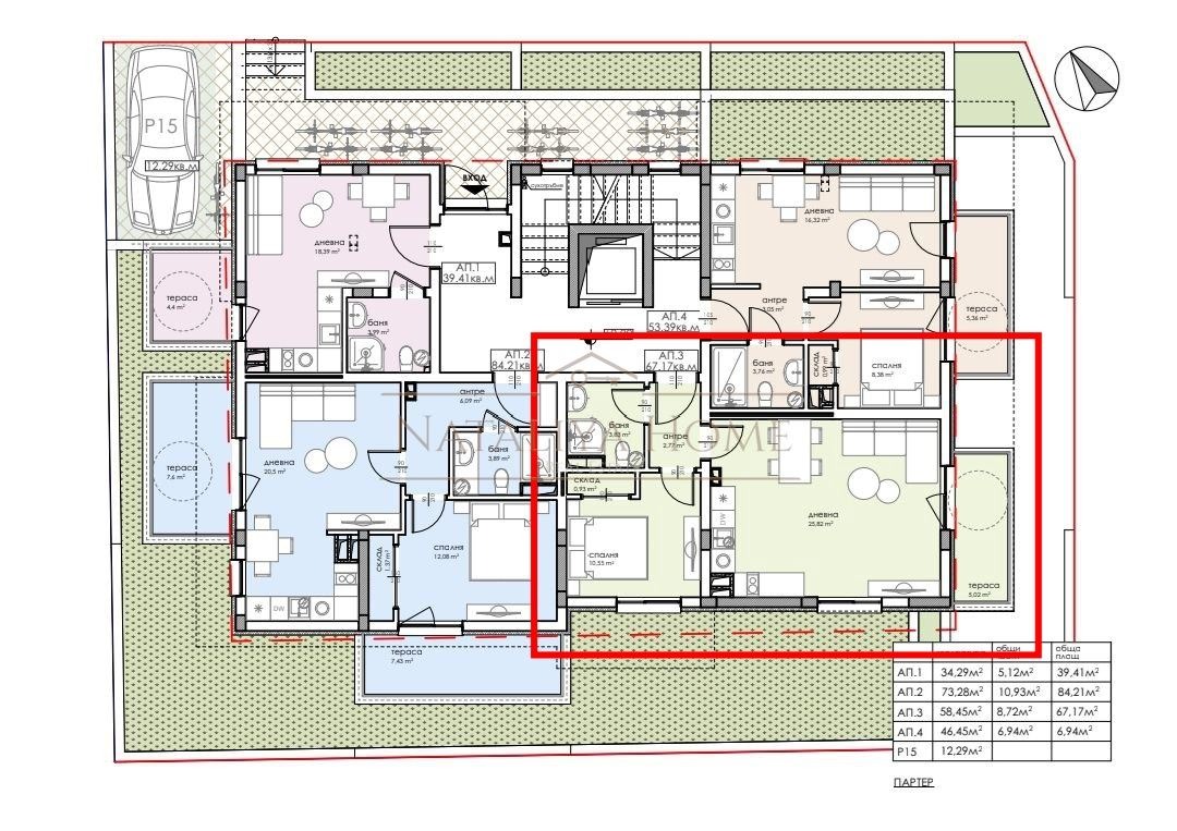
Апартаментът е с площ от 67,17 кв.м., разположен на партерен етаж. Имотът се състои от входно антре, всекидневна с кухненски бокс, спалня, баня с тоалетна, склад и тераса. Жилището е с южно изложение. Апартаментът се продава на тапа, с възможност завършване до ключ по желание на клиента. Към жилището се предлага възможност за закупуване на открито паркомясто на цена 8 000 евро или място в подземен гараж на цена 10 000 евро. Сградата ще бъде изпълнена в съвременен стил, с висококачествени материали и технологии, гарантиращи комфорт и дълготрайност.
Район Мисаря е предпочитана зона за живеене и инвестиция в Созопол, благодарение на спокойната си атмосфера, просторните улици и бързия достъп до центъра на града и стария град. Наблизо се намират магазини, заведения, автобусни спирки, а плажът Харманите е на пешеходно разстояние. Районът се отличава с ново строителство, добра инфраструктура и удобства за целогодишно живеене.
Созопол е един от най-старите и красиви градове по българското Черноморие, съчетаващ уникално културно-историческо наследство и модерна курортна атмосфера. Старият град впечатлява с калдъръмени улички, възрожденски къщи и археологически находки, а новата част на града предлага разнообразие от заведения, магазини и развлекателни обекти. Прекрасните плажове, съчетанието на море, природа и история, правят Созопол предпочитано място както за отдих, така и за инвестиция в недвижими имоти.
Начало на строителство: ноември 2025 г. Край на строителство: 2027 година.
Дирекно от инвеститор! Без комисиона от купувача! Съдействаме за банков кредит!







