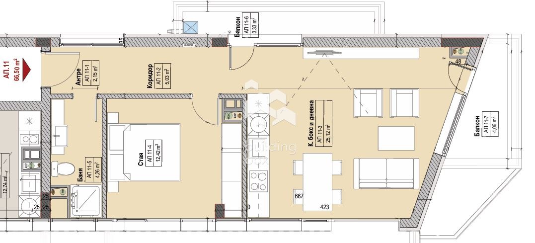
Апартаментът се състои от: входно антре, дневна с кухненски бокс, самостоятелна спалня, коридор, баня с тоалетна и две тераси.
Изложение: Изток, Юг, Запад.
Имотът се намира на трети надпартерен етаж от общо три.
Към апартамента има склад на същият етаж на сградата с площ от 2,80 кв.м.
Ще бъде предаден на шпакловка и замазка, като има възможност, за довършителни работи на преференциални цени.
Комплексът е разположен в най- хубавата част на ж.к. Овча Купел, с модерна архитектура, функционални разпределения и отлична локация. Концепцията e осъществена, с мисъл към семейството и за хора, които не биха направили компромис с дома си.
Комплексът се състои от две жилищни сгради с общо 23 апартамента от различна големина и 23 гаража и паркоместа.
На пешеходно разстояние се намират - 66 СУ Филип Станиславов, Хранителен магазин Фантастико , Парк Овча Купел, Метростанция Монтевидео , Нов Български Университет, Болница Здравето , Метростанция Овча Купел .
Комплексът предоставя на своите бъдещи жители и техните гости отлични условия за спокоен живот.
Планиран срок за въвеждане в експлоатация на комплекса - Юни месец 2026г.
БИЛДИНГ БОКС предоставя безплатна консултация и съдеиствие при финансиране на избрания от вас имот.
Оферта 25561
Виж всички обяви в buildingbox.bazar.bg или тук
        
       
         
         
             
            






