Охридско езеро парк е проект на ХЪС Инвест, част от групата на ХЪС ООД.
Продажби директно от инвеститора, без комисиона за купувача!
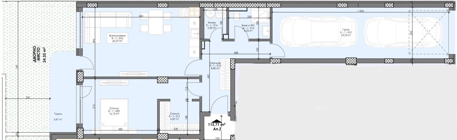
Представяме ви ап. 3, на ет. 1 в сграда Б, секция 7 със застроена площ от 117.67м2 и обща застроена площ от 139.15м2, изложение юг-запад, с гледка към вътрешния двор на комплекса.
Апартамента е с прилежащ двоен гараж. Към жилището има дворна тераса с размер 24,12м2, която е бонус.
Атрактивни цени от 1600 евро до 2000 евро за кв.м. без ДДС.
Подземни и наземни паркоместа и гаражи на цени от 31 000 евро без ДДС.
Промоционална схема на плащаане:
- 20% при подписване на договор
- 80% след Акт 16
Собственост се прехвърля след Акт 16!
Секции от 4 до 12 са с Акт 14, а Секции 1,2 и 3 са в начален етап на строителство.
Охридско езеро парк е жилищен комплекс разположен в централната част на град София. Комплексът е на пешеходно разстояние от парк Възраждане, аквапарк Възраждане, спортна София, руски паметник, Мол София, метростанции Константин Величков и Опълченска, болница Пирогов, медицинска академия, детски градини, училища и супермаркети.
Комплексът е от затворен тип и се състои от 12 жилищни сгради, магазини и медицински център.
Озеленен вътрешен двор, с детска площадка.
В комплекса са проектирани апартаменти от 69м2 до 300м2, с една, две, три и четири спални. Партерните апартаменти са с прилежащи дворни тераси, а пентхаусите са с просторни тераси и панорамни гледки към София и Витоша.
Фасадите са окачени, вентилируеми, с изолация от каменно-минерална вата, дограмата е Reynaers с троен 44 мм стъклопакет.
Всеки апартамент е с монтирана индивидуална термопомпа Toshiba,(захранваща подово отопление монтирано във всяка стая), или с изводи за климатици.
За повече информация можете да се свържете с нас:
тел.:0882 330022
тел.:0889 600150
E-mail: [email protected]
Офис продажби: гр. София, ул.'Сребърна'27В.



