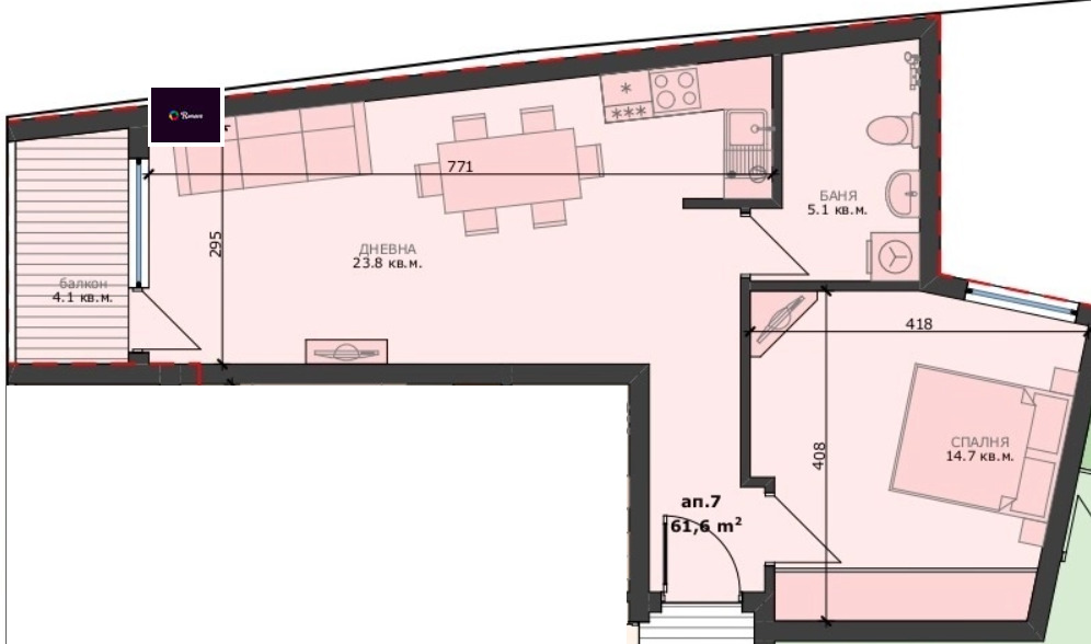
агенция Ронева представя на Вашето внимание двустаен апартамент с чиста застроена площ от 61.6кв.м. намиращ се на втори етаж в новострояща се сграда в кв. Погреби.
Намира се на комуникативна локация с бърз достъп до ул. Девня, на пешеходно разстояние от търговски обекти, училища и основни транспортни връзки локация, която осигурява удобство и комфорт в ежедневието.
Апартаментът ще се състои от просторна дневна с кухнески бокс (23.8кв.м.), спалня (14.7кв.м.), баня с тоалетна (5.1кв.м.) и балкон (4.1кв.м).
Възможност за закупуване на паркоместа!
Гъвкави схеми за разплащане.
За повече информация и оглед се свържете с нас на 0884788229
Реф. номер: 90034
Виж всички обяви в roneva.bazar.bg или тук
        
       
         
         
             
            






