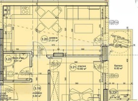
Имотът е тип двустаен , разположен на ет. 3 от 13, с източно изложение и следното разпределение: Г-образен коридор, всекидневна с кухн. част 22 кв.м. с излаз на балкон 6 кв.м., спалня 11 кв.м., санитарен възел.
Апартаментите се издават в състояние по БДС. С възможност за закупуване на подземни, надземни паркоместа и гаражи. Гъвкави схеми на плащане.
Имотът е подходящ както за лично ползване, така и с цел инвестиция, поради все по-често предпочитаната локация, в близост до Парк Възраждане и множество търговски обекти от всякакъв вид.
Можем да организираме оглед в удобно за вас време, свържете се с нас! Референтен номер: PL-4372
Виж всички обяви в topimmo.bazar.bg или тук







