Билдинг Бокс представя сграда, която се отличава с просторни жилища с перфектно разпределение, нисък процент общи части и високо качество на строителството, изпълнено от опитни професионалисти, които осигуряват сигурност и комфорт за бъдещите обитатели.
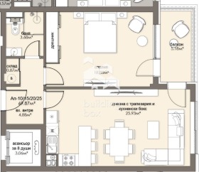
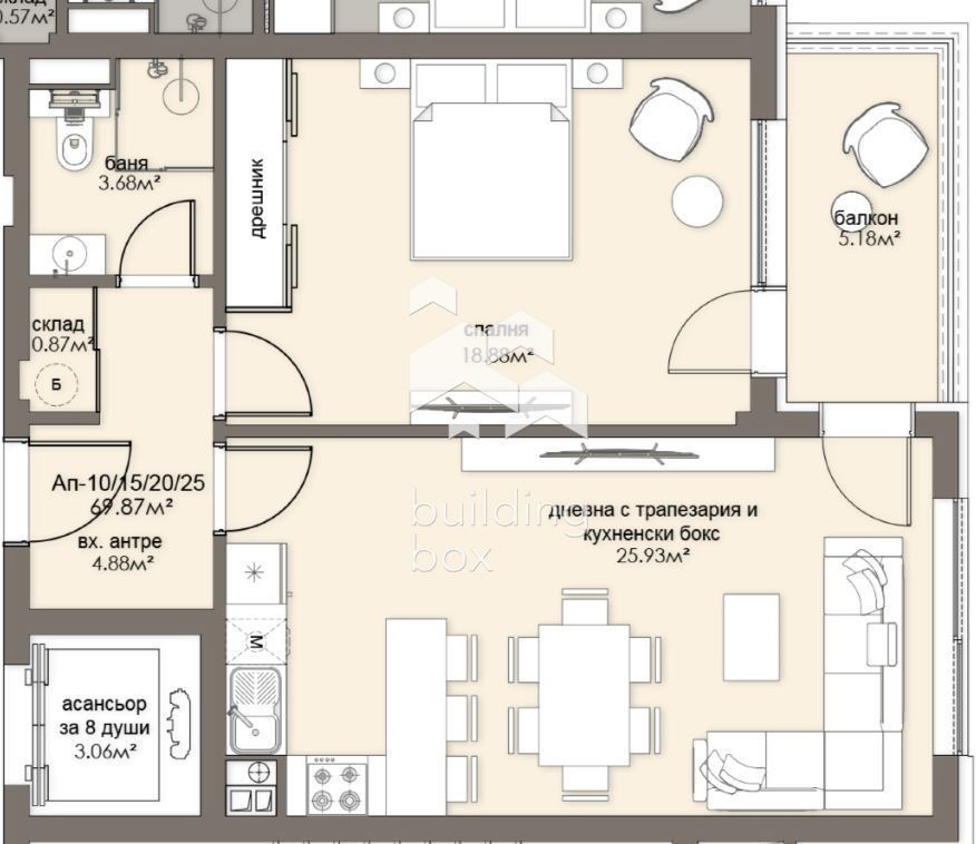
Имотът е със застроената площ от 69.87 кв.м, а разпределението му е както следва: входно антре, дневна с кухненски бокс, спалня, склад, баня с тоалетна и балкон. Изложението на имота е изток. Намира се на 6-ти етаж от общо 7 етажа. Отоплението е на ТЕЦ, ще има изводи за климатици и бойлер.
Жилищния комплекс изпъкващ сред сградите в района с иновативен дизайн, модерна фасада и перфектни архитектурни решения. Ще предостави комфорт за бъдещите си собственици и всички необходими удобства за днешния градски живот. При изграждането на проекта ще бъдат използвани висококачествени материали и технологии.
Сградата е на междинни плочи и ще бъде завършена 2027г.
Местоположението на сградата е в непосредствена близост до спирки на градски транспорт, магазини и супермаркети, детски градини, училища, много зелени междублокови пространства и Западния парк. Локацията има бърз излаз до Околовръстния път.
Билдинг Бокс Ви предлага безплатна консултация и кредитно съдействие за финансиране на покупката на Вашия имот.
Оферта 18589







