Вашият брокер : Александър Николов 0896 660 253
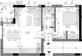
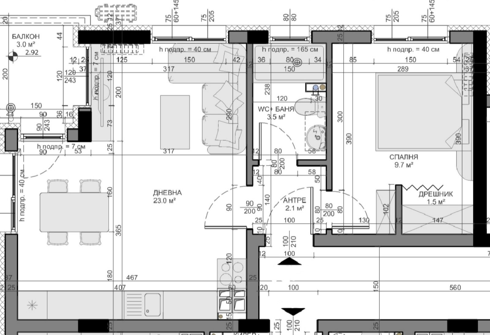
Имотът представлява : входно антре, просторна всекидневна с обособена кухненска част (23м2), с излаз на тераса; уютна спалня ( 11м2 ), сервизно помещение. Жилището е със западно изложение, разположено на втори жилищен етаж.
Състояние : Имотът се предлага по БДС, като може да бъде завършен 'ДО КЛЮЧ' на преференциални цени!
Сградата : Луксозно завършени общи части на естествен гранит, алуминиеви парапети, хидравличен асансьор с долно машинно гарантиращ безшумната работа на съоръжението. Домофона система за контролиран достъп в сградата.
Локация : Апартаментът е с отлично местоположение, както за живеене, така и за отдаване под наем - ж.к. Владислв Варненчик ! Лесен и бърз достъп до административни учреждения, банки, училища, детски градини, автобусни спирки, детски площадки, аптеки, търговски центрове, супермаркети, козметични студия, заведения.
Забележка: Приложените по-горе снимки са илюстративни и имат за цел да Ви дадат максимално добра и идейна представа за общия вид и разпределението на имота!
Защо да закупите този имот ?
Купувате най изгодния имот в сградата !
Ние ще съдействаме за безлихвено разсрочено плащане съобразено с вашите нужди !
Като клиенти на Дом в България Вие получавате жилищни кредити на най изгодни условия !
При закупуване на жилище с цел отдаване под наем, ще получите безплатен анализ на предлаганите имоти под наем в района и ще Ви насочим да закупите този с най бърза възвращаемост на инвестицията !
Виж всички обяви в domvbulgaria.bazar.bg или тук







