Предлагаме за продажба двустаен апартамент, разположен в новопостроена сграда в един от най-предпочитаните райони на ж.к. Меден Рудник - зона А, блок 283. Сградата е вече присъединена към ЕВН, като се очаква въвеждане в експлоатация (Акт 16) до края на годината.
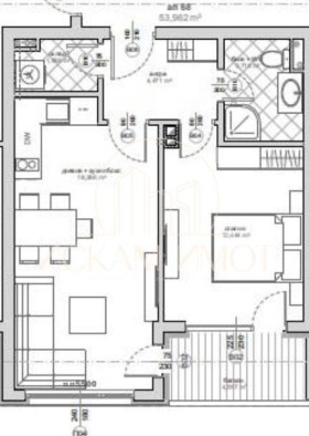
Жилището е с обща площ от 64,2 кв.м и е със следното разпределение:
- просторна дневна с кухненски кът,
- светла спалня,
- обща за двете стаи тераса,
- баня с тоалетна.
Апартаментът е с югозападно изложение, което го прави изключително слънчев и топъл, с гледка към тихата и спокойна страна на сградата - идеално за комфортно и уютно обитаване.
Продава се на степен завършеност на тапа :
шпакловани стени,
гранитогрес на терасата,
монтирани вътрешни врати,
поставени ключове и контакти,
нов цифров водомер,
електрическо табло и звънчева система.
⚠️ В съседство се предлага идентичен двустаен апартамент със огледалното разпределение и същото изложение - отлична възможност за покупка на два имота едновременно (например за инвестиция или за близки хора).
Свържете се с нас за повече информация и оглед.
Виж всички обяви в iskamimot.bazar.bg или тук







