МОНАМИ ПРОПЪРТИС изключително функционален 2стаен апартамент в сграда от ново поколение.
Сградата е разположена в един от най-атрактивните и бързо развиващи се райони на София, осигуряващ бърз достъп до основните транспортни артерии на столицата, както и непосредствена близост до автобусни спирки, детски градини и училища.
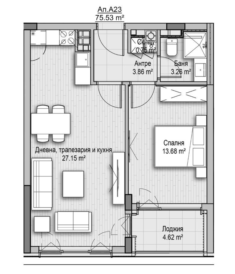
Апартаментите се отличават с функционални и светли пространства с индивидуален характер и удобни архитектурни разпределения. На ниво партер се намират 4 търговски помещения, предлагащи всичко необходимо за удобството на живущите в сградата. Паркоустройствения проект цели благоустрояване и естетизация на екстериорното пространство.
За удовлетворяване на нуждите на живущите в сградата, подземните нива на сградата разполагат със 153 паркоместа и 12 гаража за автомобили. Предвидени са и зони с места за велосипеди.
Сградата ще разполага с видеонаблюдение и денонощна охрана на входа. Сигурността и удобството на живущите ще е гарантирано с контрол на достъпа до подземните нива и входовете на сградите.
Предлагаме различни по вид и големина имоти в същата сграда, не се колебайте да се свържете с нас!
Работим с колеги :)
Виж всички обяви в monami.bazar.bg или тук







