AXIO осигурява 24/7 обслужване чрез виртуален асистент за въпроси, информация и директно запазване на оглед, с последващ контакт от консултант.
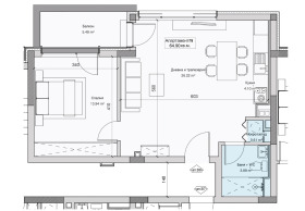
АXIO представя двустаен апартамент намиращ се във в.з. Малинова Долина в нов затворен комплекс от 5 жилищни сгради. Общата площ на апартамента е . кв. м., изложение - изток/север, етаж 3 в сграда Д, етап на строителство - акт 14, отопление на газ, с избор на гараж или паркомясто.
Разпределение:просторен хол с кухненски бокс, спалня, баня, мокро помещение.
Концепцията на проекта комбинира съвременен архитектурен стил и надеждно строителство, като конструкцията е стоманобетонна, със зидария от керамични тухли 'Wienerberger'. Фасадата е изпълнена като окачена вентилируема система с панели 'Laminam/Promot'. За топлоизолация е използвана каменна вата, а за хидро- и шумоизолация материали 'Sika' и 'Foamex'. Терасите са с двоен под, изграден от 2 см гранитогресни плочи, а подовете в сутерена са завършени със шлайфан бетон. Дограмата е алуминиева, с прекъснат термомост, комбинирана със система външни ролетни щори 'Etem/Alvia', с електрическо задвижване - 'Somfi'.
С площ от 7500кв.м. природно парково пространство, комплексът осигурява спокойствие и хармония с природата, контролиран достъп, лятно кино, детски площадки , екстериорен фитнес и парк за домашни любимци. Като в непосредствена близост се намира Ринг Мол, Икеа, бъдеща метростанция и станцията на кабинковия лифт 'Симеоново .
Апартаментът съчетава комфорт и стил, високо ниво на шумоизолация и индивидуално газово отопление. Просторните и светли площи са готови за обзавеждане, а модерните материали гарантират уют и енергийна ефективност. Отлична локация до Търговски център, транспорт и зелени площи - идеален избор за спокойствие и удобство.
Ако Вие търсите такъв тип имот, ние ще осигурим сигурна сделка за Вас.
За оглед и допълнителна информация: Номер на обява - 195
Тел.: 0883 437 273 | Email: [email protected]
AXIO - Умната агенция за недвижими имоти







