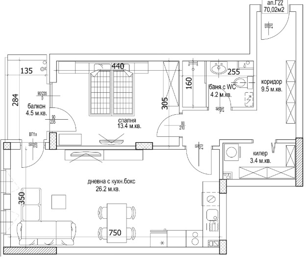
Жилището е разположено на етаж 5 и се състои от: дневна- 26 кв.м, спалня - 13 кв.м, антре - 9 кв.м, баня с тоалетна - 4 кв.м, килер - 3 кв.м, балкон - 4 кв.м;
▪️Обща площ: 82 кв.м;
▪️Цена: 107 500 ;
▪️Изложение: запад;
📌Локация: Сградата се намира в бързоразвиващ район в близост до изхода на града, летище Варна, голям търговски магазин;
🏎Възможност за паркомясто;
Без комисиона от купувача!
🔊За повече информация:
Иван Петров - 0895535838
Виж всички обяви в komfortbrokers.bazar.bg или тук
        
       
         
         
         
         
             
             
             
            






