ТОПИММО предлага за продажба двустаен тухлен апартамент в новострояща се сграда в местност Пчелина .
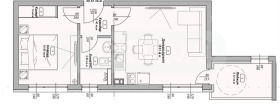
Имотът е разположен на трети етаж от четири със следното разпределение: антре, всекидневна с кухненска част с излаз на тераса, спалня, санитарен възел.
Имотът ще бъде издаден съгласно БДС стандарт.
Последни апартаменти в сградата. Разсрочена схема на плащане. Възможност за закупуване на паркомясто.
Можем да организираме оглед в удобно за вас време, свържете се с нас! Референтен номер: PL-4353







