ДИРЕКТНО ОТ ИНВЕСТИТОРА
За най-новия ни проект сме вдъхновени от Hygge (хюга), от датски - състоянието на духа и усещането, когато прекарваме времето си в уютна домашна атмосфера с близки хора.
Подбрахме локация далеч от забързания ритъм на града, с гледка към Родопи. Ниско застрояване - 3 етажа, само 38 апартамента на 4000 кв. м площ. Апартаменти с двор, малко съседи, общи пространства за социализация. Тук може да създадете своята 'hygge'.
Акценти
Затворен комплекс
38 апартамента
4000м2 парцел
125% обезпечено паркиране
Висок клас дограми и стъклопакети
Шумоизолация в пода
Централен филтър за питейната вода
Спирка на градски транспорт
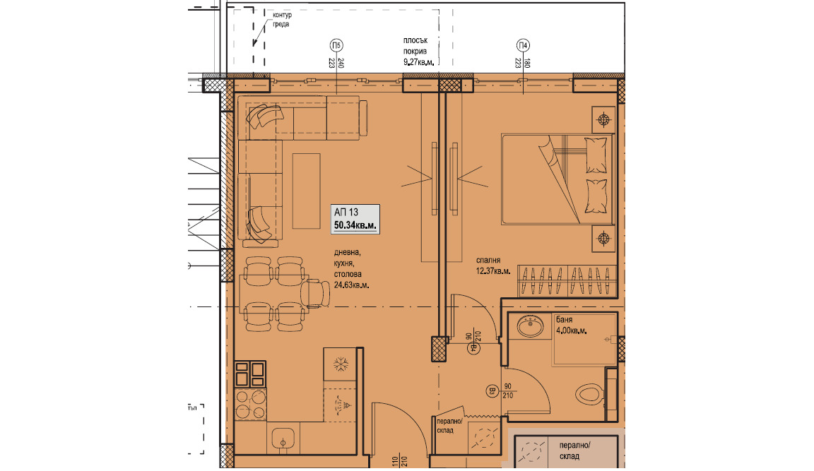
Конкретно представяме на вниманието Ви апартамент Б12.
- двустаен,
- втори етаж,
- благоприятно изложение - запад,
- френски прозорци за максимално естествено ослънчване.
Идеален за инвестиция.
Нисък процент общи части, без изби, малко съседи.
Цената е валидна при схема на плащане 50% на предварителен договор, 40% на Акт 14, 10% на Акт 16.
Свържете се с нас на 0876600191 или посетете сайта ни www.2122invest.com за повече информация.




