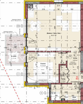
Vivahome има удоволствието да предложи в продажба РЯДКО СРЕЩАН ДВУСТАЕН АПАРТАМЕНТ разполагащ с холна част от 27 м² !
Разпределение:
--> Входно антре/коридор
--> Всекидневна с кухня
--> Тераса с излаз от всекидневната и спалнята
--> Спалня
--> Килер
--> Санитарен възел
Апартаментът се намира на 2-ри етаж в 3 етажна новострояща жилищна сграда в района на к.к. 'Св. св. Константин и Елена' !
Френските прозорци го правят изключително светъл и просторен. А просторните стаи дават възможност да се реализират красиви и стилни интериорни решения!
Сградата е в начален етап, строителството ще бъде в кратки срокове предвид етажността на сградата. Позиционирана е на удобно място в близост до автобусна спирка, магазин и в изключителна близост до к.к. 'Св. св. Константин и Елена'.
Плащане на удобни и гъвкави схеми !
Имот изключително подходящ за хора, които обичат простора !
Цена - 145 000 евро с включено паркомясто в цената.
За повече информация и огледи - Бойко Спасов, тел: 0879991120
Съдействаме за отпускане на банков кредит - обадете ни се за консултация !
Vivahome - Вашият партньор в света на недвижимите имоти !
Разгледайте и другите ни предложения на www.vivahome.bg







