НОВА СГРАДА!! РАЗСРОЧЕНО ПЛАЩАНЕ !! НАЛИЧНИ ПАРКОМЕСТА !!
Имоти Премиер предлага за продажба двустаен апартамент в ново строяща се жилища сграда, намираща се във Възраждане 4.
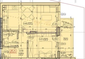
Имотът е разположен на втори етаж и има следното разпределение: коридор, дневна с кухненска част, спалня, баня и тоалет в едно и тераса.
Сградата ще бъде изградена с модерна визия и съвременен дизайн.
Строителството е качествено, съчетано с комфорт и функционалност.
Предлагаме двустайни, тристайни и четиристайни апартаменти съобразени с нужните на семействата и стила на живот.
Осигурени са и подземни и надземни паркоместа за удобство на живущите.
За повече информация се обадете на посочения телефон и цитирайте код: 374065







