AZ Estate предлага за продажба просторен необзаведен двустаен апартамент в к-с Тортуга квартал Хоризонт, гр. Бургас.
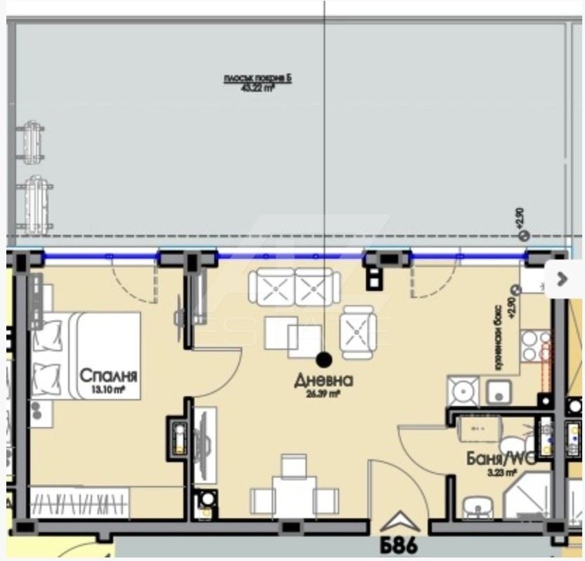
Жилището е с площ 99кв.м (терраса 43 кв м) и се намира на 9-ти етаж.
Разпределението е както следва: антре, голям хол с изводи за кухня, баня с тоалетна, стая и тераса.
Имотът е подходящ, както за сезонно, така и за целогодишно ползване.
Комплекс разполага с: денонощна охрана, ограничен достъп, техническа поддръжка, поддръжка на общите части, озеленени площи,
Акт 16 се предвижда през 2028 г.
Комплексът се намира в нов квартал Хоризонт вблизост магазин Метро .
Наблизо са: голям супермаркет, магазини, аптека, поликлиника, спирка на автобуса, ресторанти, заведения и друга инфраструктура.
ПВ 30-40%
розтрочено плащане - 30 месяци.
Директно от строителя! Без Комисионна!
Виж всички обяви в azestate.bazar.bg или тук







