#АКТ 14 !!
#1500 КВ.М !!
#КОМУНИКАТИВЕН РАЙОН !!
#ДОКАЗАН СТРОИТЕЛ !!
#СРЕДЕН ЕТАЖ !!
#ПАНОРАМЕН !!
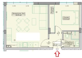
Представяме Ви двустаен апартамент в новострояща се сграда на удобна локация с асфалтов достъп и близост до комуникации във варненския квартал- Възраждане. Разпределението на имота е : антре, спалня, всекидневна с кухненска част, баня с тоалет и дрешник. Сгрдата ще бъде изпълнена от сигурен инвеститор с множество завършени проекти. За изпълнението на сградата са предвидени последно поколение топло и хидро изолационни материали , най-нови технологии за постигане на минимални последващи разходи.Пространството около сградата изцяло се облагородява и озеленява.Проектирана е система за преработка и събиране на дъждовна вода за напояване на зелените площи.
Lions Group🦁 - единствената компания с online инвестиционен канал в ▶️youtube‼
👉Ако се интересувате от инвестиции в недвижими имоти🏘,
aбонирайте се за канала ни и получавайте знания📖 и информацияℹ, НАПЪЛНО БЕЗПЛАТНО‼️
Доверете се на над 1⃣0⃣ годишния ни опит в бизенса с недвижими имоти, посредничество при сделки и инвестиране!
🌐Линк към канала за ИНВЕСТИЦИИ В ИМОТИ: www.youtube.com/@Инвестициивимоти
Цена 83 000
Свържете се с мен за повече информация и уговорка за оглед.
0888393222
Йордан Николов
Реф. номер: 14101
Виж всички обяви в lionsgroup.bazar.bg или тук
        
       
         
         
         
             
             
            






