Двустаен апартамент в нова сграда без комисионна, директно от строителя!
Представяме ви новострояща се жилищна сграда, разположена в тих и комуникативен район на кв. Кайсиева градина, гр. Варна. Сградата се изпълнява от доказан строител с опит и високо качество на изпълнение.
На ваше внимание:
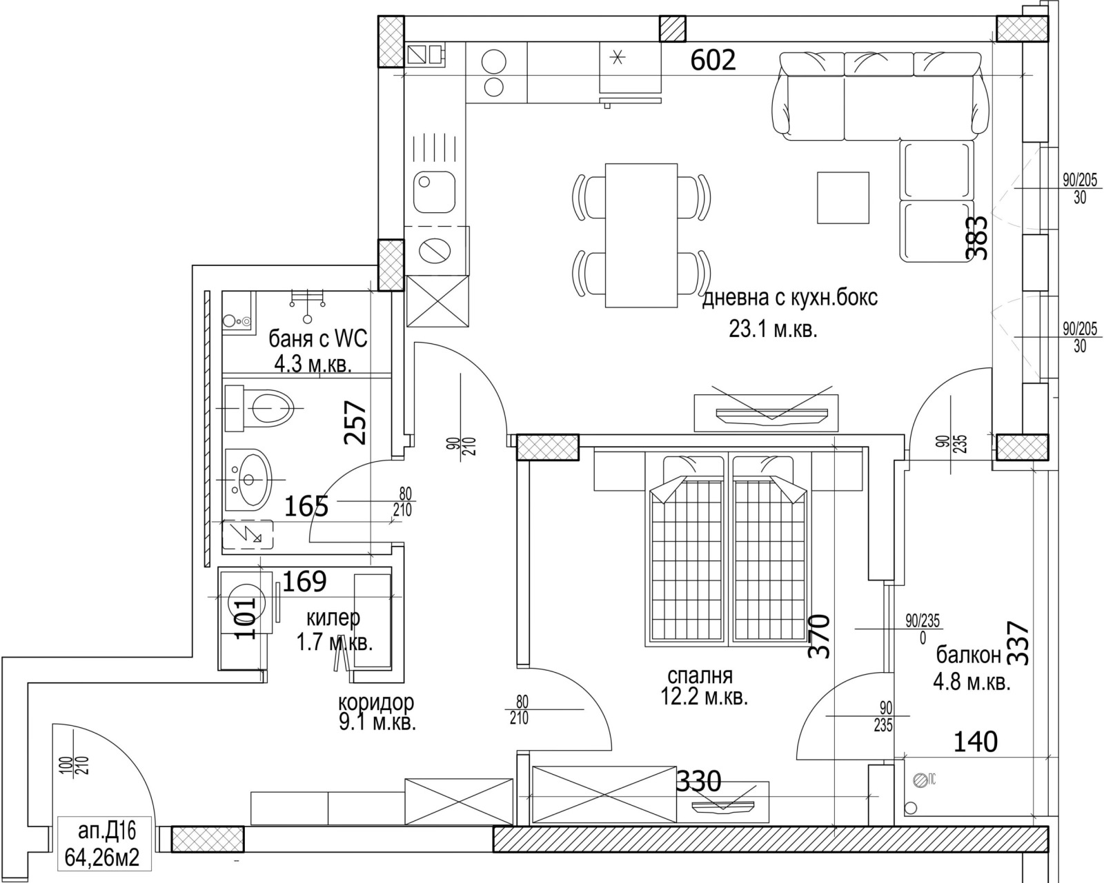
👉 Двустаен апартамент с обща площ от 76.17 кв.м, находящ се на 4-ти етаж.
Функционално разпределение: входно антре, просторна дневна с кухненски бокс, спалня, баня с тоалетна, тераса.
🔹 Цена: 106 500 евро
🔹 Отлична локация с лесен достъп до градски транспорт, магазини и училища
🔹 Подходящ за лично ползване или инвестиция







