✨ Двустаен апартамент в нова сграда в широкия център на гр. Плевен ✨
Предлагаме ви функционален двустаен апартамент, разположен в нова жилищна сграда в широкия център на Плевен. Жилището е с добре обмислено разпределение, осигуряващо комфорт и удобство за своите обитатели.
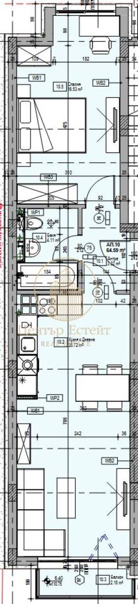
Апартаментът се състои от входен коридор, баня с тоалетна, просторна и светла дневна с обособени кухненска зона, място за хранене и холна част, която предлага директен излаз на балкон. Допълнително е обособена спалня 16.53 кв.м., създаваща усещане за уединение и уют.
Съвременното разпределение и естествената светлина правят този имот изключително подходящ както за собствено ползване, така и за инвестиция с цел отдаване под наем. Благодарение на локацията си в близост до центъра, жилището съчетава удобството на градския живот с функционалността на новото строителство.
🔑 Нова жилищна сграда в строеж - гр. Плевен
Представяме ви новострояща се осеметажна жилищна сграда с модерна архитектура и функционално разпределение на жилищата. Проектът е в процес на изграждане (преди Акт 14) и предлага комфорт, съчетан със стил и практичност.
Сградата включва 25 апартамента от уютно ателие до просторни двустайни и тристайни жилища, съобразени с различните нужди на бъдещите собственици. На разположение са и търговска част, гаражи и мазета, което прави имота още по-удобен и практичен. Отоплението е на ТЕЦ, като има възможност за изграждане на подово отопление във всеки апартамент.
📍 Локацията е сред най-големите предимства в близост до учебни заведения, Медицински университет, болници и Панорама мол Плевен. Централната част на града е само на минути разстояние, което осигурява лесен достъп до всички удобства.
🎯 Този имот е подходящ избор за всеки, който търси уютно жилище за собствено ползване, но също така е и чудесна възможност за отдаване под наем благодарение на комуникативната локация.
В партньорство с Кредит Център съдействаме на нашите клиенти да получат най-изгодните условия по ипотечни и потребителски кредити от 13 водещи банки.
📞 За повече информация и огледи:
0897 300 094
0877 762 332
Код на оферта: 1004
Виж всички обяви в centerestate.bazar.bg или тук
        
       
         
         
         
         
         
         
             
             
             
             
             
            






