Агенция за недвижими имоти ХОУМ ФОР Ю има голямото удоволствие да ви представи за продажба двустаен апартамент 11 в новострояща се луксозна сграда в кв. Освобождение гр. Благоевград.
Сградата се състои от: модерен безшумен асансьор ОРОНА премиум, сутерен на две нива с 16 бр. подземни паркоместа и 18 бр. мазета, 18 бр. апартаменти разположени на партер и четири жилищни етажа.
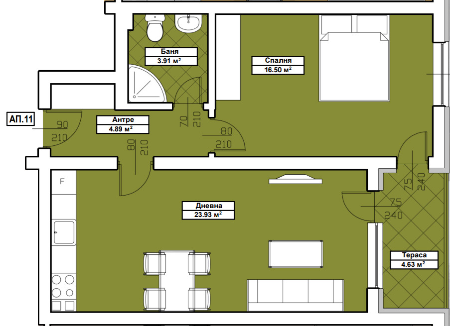
Вашият нов ДОМ се намира на КОТА + 5,60 на втори жилищен етаж с изцяло източно изложение, което го прави много слънчев, светъл, топъл и уютен!
Застроената му площ е 62,70 кв.м. + 6,78 кв.м. общи части, което се равнява на 69,48 кв.м. обща площ, ведно с прилежащо мазе с площ 2,13 кв.м.
Със следното вътрешно разпределение на стаите и тяхната полезна (светла) площ:
- входно антре с площ 4,89 кв.м.
- баня с тоалетна с площ 3,91 кв.м.
- спалня с площ 16,50 кв.м.
- дневна с кухненски бокс с площ 23,93 кв.м.
- тераса с площ 4,63 кв.м.
Жилището е завършено по БДС и се предава в следния вид:
- Зидария с висок клас тухли 25 см;
- PVC дограма Rehau Synego 6 камерна 80мм. с висок клас обков на Maco с 4 точки на притискане с високоенергиен троен стъклопакет: К-а стъкло + Б + четири сезона 42мм.
- Топлоизолационна система EPS (експандиpан полистирен) 10 см. и полимерна мазилка;
- Луксозни общи части с гранит и иноксови парапети;
- Стени и тавани: фина гипсова мазилка
- Блиндирани входни врати с многоточково заключване;
- Изводи за климатици във всяка стая;
- Стъклени парапети на терасите;
- Под: циментова замазка;
- Ел. до точка;
- ВиК до тапа;
За ваша сигурност, спокойствие и удобство за новия Ви ДОМ, предлагаме да закупите подземно паркомясто на цена от 12 000 евро, за да не се налага всеки ден да обикаляте и да търсите място на което да паркирате автомобила си.
ЕТАП НА СТРОИТЕЛСТВОТО: В СТРОЕЖ!!!
ПЪРВА КОПКА - началото на септември 2025г.
АКТ 14 - очаква се през декември 2026г. (това е документът за приемане на конструкцията на сградата, който се издава, когато сградата достигне етап груб строеж)
АКТ 15 - очаква се през декември 2027г. (това е документът, с който се констатира, че сградата е напълно завършена)
АКТ 16 - очаква се през март 2028г. (това е документа, с който сградата се въвежда в експлоатация или по просто казано годна за живеене )
Жилището очаква своите нови собственици, които ще го стопанисват и превърнат в техен дом!
За да получите повече информация за предлаганата от нас оферта може да ни се обадете на посочените телефони за връзка!
Екипът от професионалисти на ХОУМ ФОР Ю ще Ви помогне да сбъднете мечтите си и да ги превърне в реалност, като ви съдейства НАПЪЛНО БЕЗПЛАТНО при кандидатстването за жилищен кредит с ПРЕФЕРЕНЦИАЛНИ УСЛОВИЯ от най-големия кредитен консултант в България КРЕДИТ ЦЕНТЪР!
Ако предлаганият апартамент ви е харесал и представлява интерес за вас, не се колебайте да се свържете с наш брокер, за да резервирате час за оглед в удобно за вас време!
Заповядайте в нашият офис на бул. Кирил и Методий 2 за безплатна консултация с нашите професионалисти, които ще ви обърнат специално внимание, като ви запознаят с пазара на недвижими имоти и ви помогнат с избора на ново жилище според вашите изисквания!
Новият Ви ДОМ е точно тук!
Защото с нас мечтите стават реалност!
РЕФЕРЕНТЕН 7384







