ЕРА Младост има удоволствието да представи на Вашето внимание модерна жилищна сграда разположена в полите на Витоша, в кв. Симеоново. Какво е важно да знаем за тази сграда? Това е уникалната комбинация от съвременен комфорт и природа, чист въздух , тишина и спокойствие.
Динамично развиващ се район, новите затворени комплекси от къщи и съвременни сгради променят облика и създават приятна и модерна среда за живот. Не е необходимо да планирате разходка в планината, вие живеете в нея. Пешеходното разстояние до кабинков лифт Симеоново, осигурява лесен достъп до планински маршрути, идеални за целогодишен спорт и активен отдих.
Лесен достъп до търговски центрове, ресторанти и развлекателни зони, които допълват удобството на съвременния начин на живот.
За Ваше удобство избрания имот може да бъде завършен и обзаведен , така че да отговаря на Вашите нужди и предпочитания. Насладете се на лесния преход към новия си дом, без допълнителни усилия.
Комплексът се състои от 48 имота с функционални и внимателно проектирани към най-малкия детайл разпределения за предоставяне на максимален простор, светлина, удобство и семеен уют на своите обитатели. Подходът към входа на кооперацията е решен посредством изцяло автоматизиран контролиран достъп и видеонаблюдение. Общите части са проектирани от водещо интериорно студио, съгласно цялостната визия на комплекса, а избраните висококачествени материали допълват цялостния облик за ексклузивност и лукс.
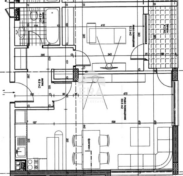
Ателие номер 1I се намира на първи жилищен етаж, с квадратура 78.59 кв.м и се състои от входно антре с квадратура 6,9 кв., и място за вграден гардероб, просторна всекидневна с квадратура 33,5 кв.м и изход на тераса обща с спалнята, която е с квадратура 12,20 кв.м, баня с тоалетна с квадратура 4,20 кв.м и обща тераса с квадратура 4.20 кв.м. Изложение юг.
Оферта 0311812







