ЗАПОЧНАТО СТРОИТЕЛСТВО! ЦЕНИ ОТ ИНВЕСТИТОР! РАЗСРОЧЕНО ПЛАЩАНЕ! ДОКАЗАН СТРОИТЕЛ!
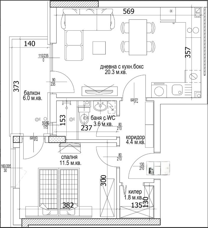
Предлагаме за продажба двустаен апартамент в новострояща се жилищна сграда в Кайсиева Градина. Изцяло среден апартамент със следното разпределение:
-Коридор, дневен тракт с кухенски кът, спалня, балкон към двете стаи, баня с тоалет и килер.
Възможност за покупка на открити и закрити паркоместа.
Предлагаме избор на двустайни, тристайни и четиристайни апартаменти на различни етажи в сградата.
Четири различни схеми на плащане и опция за покупка с банков кредит.
Без промяна на цените от началото до края на строителството.
Инвеститор с над 20 завършени жилищни сгради на територията на град Варна.
За повече информация - 0886 32 02 02 Симеон Георгиев.







