L'Artista представя двустаен тухлен апартамент със застроена площ от 46.35кв.м.(55.54кв.м. с общите части).
Реф. 628
Състои се от: антре /3.20кв.м./, дневна с кухненски бокс /18.22кв.м./, спалня /11.31кв.м./, общ балкон /3.06кв.м./, склад, баня с тоалетна /3,25кв.м./.
Изложение югозапад.
Жилището се предава на фина мазилка и замазка, хоризонтална и вертикална инсталация до тапа; монтирана блиндирана входна врата.
Отопление и топла вода на ток.
Хидравличен асансьор 'Орона'. Луксозни общи части.
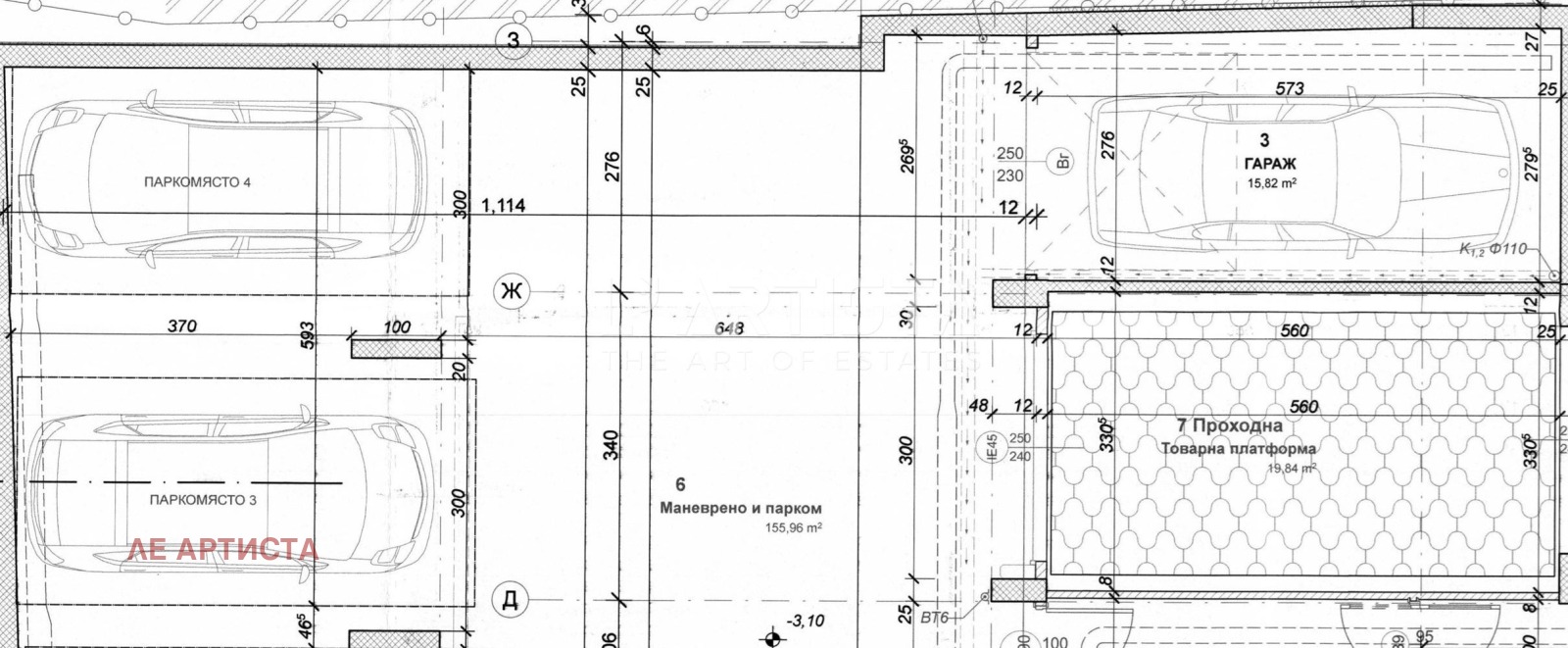
Към апартамента се предлага подземно паркомясто 3 на цена 26 000евро, срещу автомобилната платформа.
На етап пред Акт 15. Въвеждане в експлоатация до Март 2026г.
Район: Кв. 'Надежда-2' е с отлична инфраструктура: детски площадки, училища, детски градини, магазини, услуги, пазар, банки, заведения, богати зелени площи и целогодишен календар от културни събития в Северен парк, който се намира на 10 минути пешеходно разстояние.
Кварталът е идеален за семейства и активни млади хора.
Осигурен е бърз достъп до центъра на столицата - метростанция 'Надежда' на 3 минути пешеходно разстояние,
Този апартамент е идеалната инвестиция за всеки, който търси уютен и функционален дом .Отлично местоположение на метростанция 'Надежда'!
L'Artista е първата агенция в България, която предлага не само посредничество при покупко-продажба на недвижими имоти, но и широк спектър от финансови услуги - кредитиране, застраховане, инвестиционни фондове, пенсионно осигуряване и други, които осигуряват стабилност за Вашето бъдеще.
Намерете всичко, от което се нуждаете за вашите имоти и финансова сигурност на едно място!







