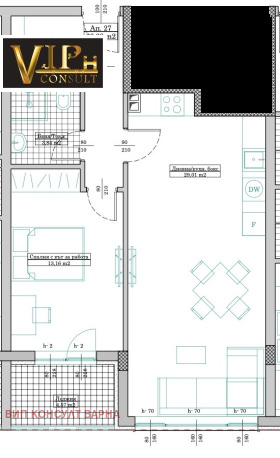
ВИП Консулт Варна предлага за продажба двустаен апартамент със западно изложение с изба 4 - 7.36 кв.м.
Разположен на втори етаж, реален 3 етаж.
Апартаментът разполага с дневен тракт 22 кв.м., спалня 11 кв.м., баня и тоалетна 4 кв.м., балкон 3 кв.м.
За повече информация:
0888 04 49 13 Виктория Ястребова







