Предлагаме ви двустаен апартамент в новостроящ се комплекс с модерна архитектура и внимателно подбрани решения за комфорт и удобство!
Комплексът има:
Стилна и красива окачена вентилируема фасадна система с алуминиеви композитни панели (еталбонд), което придава елегантен и модерен облик на сградата, осигурявайки висока енергийна ефективност и устойчивост на атмосферни влияния.
Монолитна стоманено-бетонна конструкция, енергийно ефективни тухли, висококачествена алуминиева дограма, топлоизолация с каменна вата.
Комплексът разполага с луксозни дизайнерски общи части - стилните входни пространства, елегантно завършените коридори, безшумните асансьори и комфортно организираните стълбища. Още при първата крачка в сградата, усещането за престиж и уют се разгръща чрез прецизно подбраните материали, луксозните настилки и модерното осветление.
Зелените градини и зони за отдих, както и модерните детски площадки предлагат на обитателите уютни пространства за релакс.
Проектиран с мисъл за удобството на своите жители, като осигурява достатъчно външни и подземни паркоместа, както и гаражи.
Окабеляване за станции за ел. автомобили и за технология 'Умен дом' и 'Умно осветление'..
Подготовка за термопомпа, контролиран достъп и Видеонаблюдение 24/7.
Перфектна локация: В близост до парк 'Отдих и култура', Мол Пловдив, детски градини, училища и обществен транспорт.
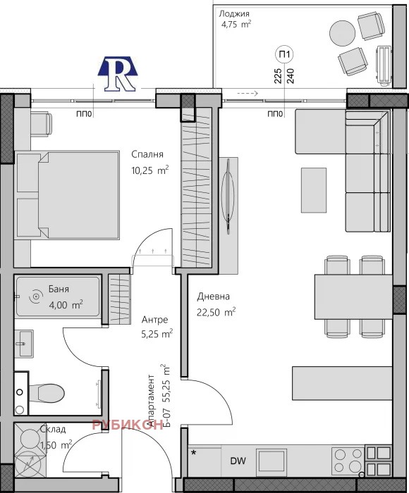
Разпределението на апартамента е както следва: просторна дневна с кухненски бокс( 22.50кв.м), спалня(10.25кв.м.), баня с тоалетна(4кв.м), антре(5.25кв.м), лоджия(4.75кв.м) и склад(1.5кв.м.). Застроена площ 55,25кв.м. Общи части - 10 кв.м. Обща площ- 65,25кв.м. Изложение - Запад!
Към жилището имате възможност да закупите и паркомясто или гараж, които се заплащат допълнително. Предлагаме безплатно съдействие за ипотечни и потребителски кредити с преференциални лихви!
Адресът на офиса ни в Пловдив е бул. Източен 47, етаж 2, офис 7
Виж всички обяви в rubikon-bg.bazar.bg или тук
        
      
        
        
            
            






