Представяме първокласен двустаен апартамент за продажба в нова сграда в кв. Манастирски ливади запад , с Акт 16.
За апартамента
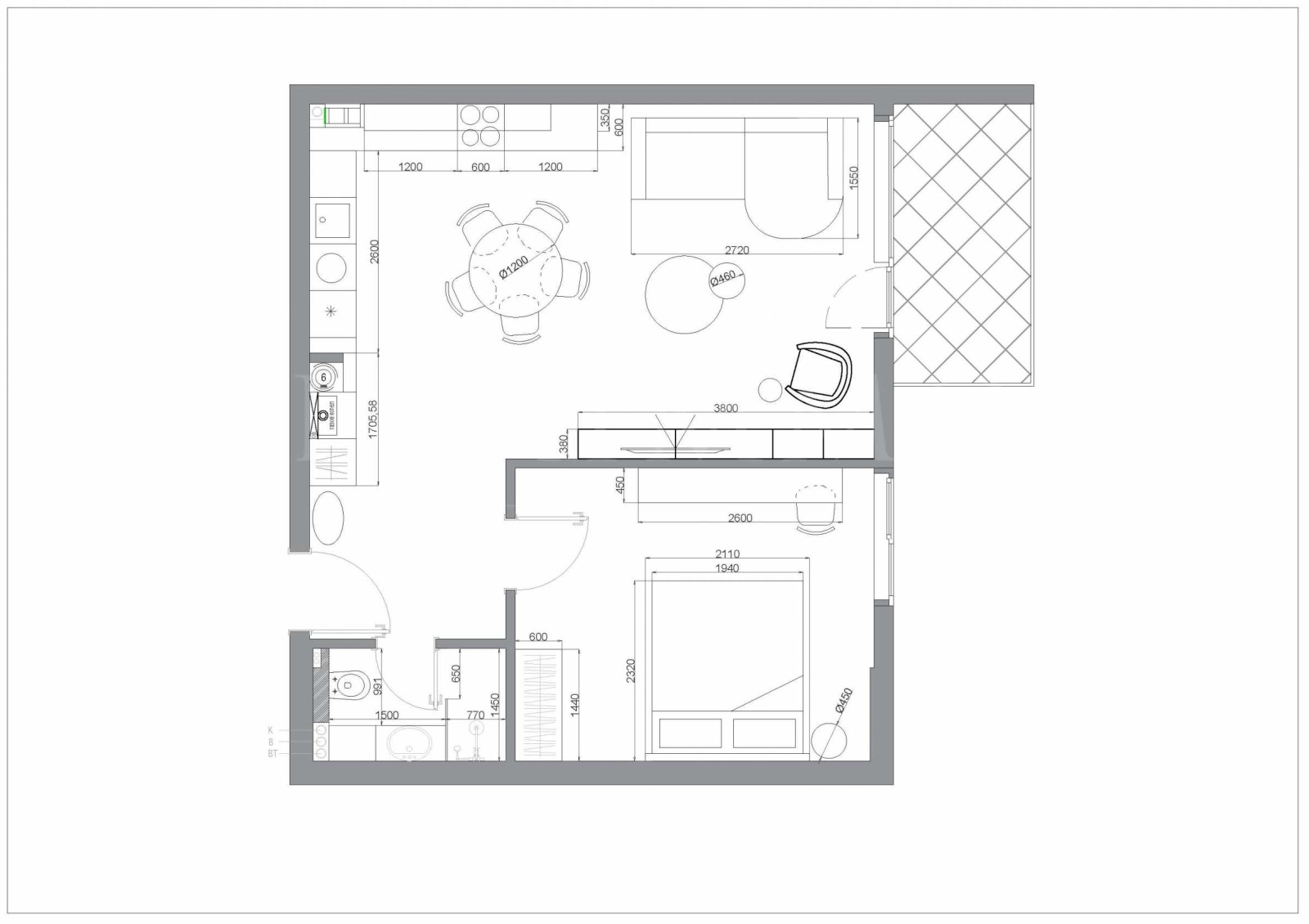
Апартаментът се намира на 6-и етаж, с източно изложение и има обща площ от 86,48 кв.м (застроена площ 73,89 кв.м). Имотът ще бъде предаден готов за обитаване без нужда от допълнителни довършителни дейности или обзавеждане, с внимателно подбрани материали и дългосрочна стойност от водещи брандове: Cucinesse, Ditre Italia, Pianca, Bonaldo, Cattelan Italia, Flos и Arkoslight.
Просторно и оптимизирано разпределение:
Дневна с кухня (29,32 кв.м) - отворен план с ясно очертани зони за готвене ( K ), хранене и мека мебел; линейна/Г- образна кухня по стена и удобна телевизионна зона. Правилни оси, позволяващи голям диван и разтегателна маса.
Спалня (17,19 кв.м) - правоъгълна стая с място за двойно легло и пълноценна гардеробна линия; спокойна отдалеченост от дневната.
Баня (3,75 кв.м) - компактна, добре организирана с отделена душ-зона и рационално разположение на санитарията.
Антре (8,83 кв.м) - достатъчна дълбочина за гардероб и обувен шкаф; директна визуална връзка към дневната.
Тераса (6,03 кв.м.)
Към апартамента има опция за покупка на голямо и удобно паркомясто на цена от EUR 45 000 (88 012.35 лв.). Осигурява лесен достъп и маневреност, което го прави изключително практично в ежедневието.
За сградата
Сградата е съвременна, от смесен тип, с безгредова стоманобетонна конструкция, вентилируеми фасади и висок клас дограма и стъклопакети. Осигурени са отделни потоци за жилищната и офисната част, контрол на достъпа и два независими подземни паркинга. Локацията ѝ осигурява бърза връзка към центъра, с търговски и спортни услуги, което прави имота удобен за обитаване и атрактивен като инвестиция.
Локация
Манастирски ливади Запад един от най-бързо развиващите се райони на София, с бърза връзка към центъра по бул. България и непосредствена близост до Природен ...
За повече информация свържете се с нас и цитирайте референтния номер на имота. Моля, кажете, че сте видeли обявата в този сайт.
Референтен номер: SOF-134316
Тел: 0988 154 604, 02 451 47 96
Отговорен брокер:Николета Петрова
Виж всички обяви в luximmo.bazar.bg или тук



