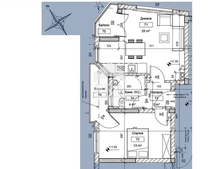
ЕРА Варна Тренд предлага за продажба двустаен апартамент в новострояща се сграда, в района на Гранд Мол. Имотът е със застроена площ 53 кв.м (63,65 кв.м с общите части), разположен на пети етаж от общо 6 етажа. Състои се от дневна с кухненски бокс (20 кв.м) и излаз на балкон, спалня (13 кв.м) с излаз на балкон, коридор (2 кв.м) и баня с тоалетна (4 кв.м). Изложението е запад (спалня) север (дневна).
Жилището се продава необзаведено. Ще бъде завършено до степен БДС, с поставена ПВЦ дограма. Отоплението ще бъде с електричество. Имотът е подходящ и за инвестиция чрез отдаване под наем.
Двустайният апартамент се намира в близост до Гранд Мол, в шестетажна тухлена сграда с асансьор, на начален етап на строителство открита строителна площадка в началото на месец май 2025 г. Срок за завършване: краят на месец май 2027 г. Предлагат се двустайни и тристайни жилища, на различни етажи, с възможност за избор на площ и изложение. Има опции за паркиране - в сутерена на сградата и на партера, срещу допълнително заплащане. Районът е много оживен и комуникативен. На пешеходно разстояние са хипермаркети Кауфланд и Лидл, Трети корпус на Икономически университет, основно училище, професионални гимназии, Автогара Варна, Търговски център, Бизнес сграда, спирки на градския транспорт.
Оферта 0221850







