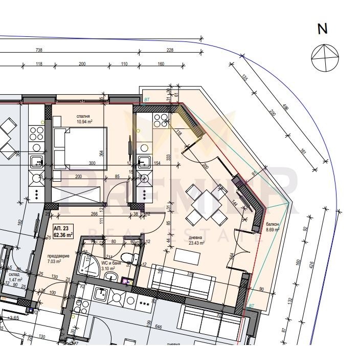
С Акт 14, Акт 16 се очаква в края на 2026 г. Жилището е ситуирано на етаж 2/7 в бутикова сграда със собствен двор и контрол на достъпа. Обща площ от 73 кв.м. с разпределение както следва: входно антре, дневна с кухненски бокс, спалня, баня със санитарен възел, тераса. Отоплението е предвидено на ток с изградено трасе за климатици.
Сградата е проектирана с модерна архитектура и се изгражда с висококачествени строителни материали. Предвидени са общо 23 жилища - двустайни и тристайни апартаменти, както подземен паркинг и гаражи на партера, които агенцията също предлага. Ситуирана е в района на метростанция, парк, учебни заведения.
Съдействаме на нашите клиенти за:
- отпускане на ипотечен кредит при възможно най-добри условия;
- подготовка на всички необходими документи за сделката;
- юридическо съдействие през целия процес на сделката.
Агенцията може да Ви съдейства и за префернциални цени при:
- изготвянето на професионални, дизайнерси проекти;
- извършването на професионални, довършителни ремонти.
Код на обявата 356397
Виж всички обяви в premierimotisf.bazar.bg или тук
        
       
         
         
         
         
         
         
         
         
             
             
             
             
             
             
             
            






