Предварителни продажби.
Старт на строителството - ноември 2025 г.
Очакван Акт 16 - ноември 2027 г.
Покупка без комисиона.
Представяме за продажба двустаен апартамент в нова, жилищна сграда в м-т Мисаря, гр. Созопол, близо до плаж 'Хармани' и 'Веселата уличка'.
Локация:
В бързо развиващ се и перспективен район, на около 700 м от плаж Хармани, в близост до училище, спортен комплекс, хипермаркет LIDL, новостроящ се медицински център и други удобства.
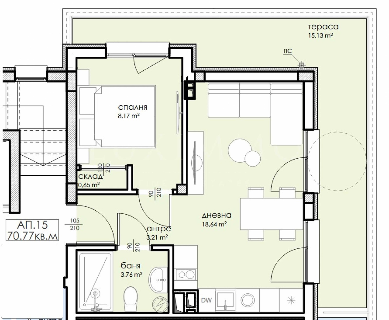
Предлаганият имот е разположен на 4-ти етаж, с обща площ от 70,77 кв.м и панорамна тераса с площ от 15,13 кв.м.
Разпределение:
антре;
дневна с кухня;
спалня;
баня с тоалет;
тераса.
Жилището се издава в степен на завършеност по БДС:
фасада: EPS топлоизолация 10 см, силиконова мазилка Baumit;
дограма: PVC, 5-камерна;
тераси: гранитогрес, XPS, хидроизолация, алуминиев парапет;
общи части: стълбище с гранитогрес, алуминиев парапет;
входна врата;
Ел. инсталация;
възможност за кабелна телевизия, интернет и телефон
ВиК изпълнена 'до тапа'
стени - вътрешна мазилка, шпакловка;
тавани - шпакловка;
под - циментова замазка.
Има възможност за завършване 'до ключ'.
Сградата ще бъде с асансьор, с 15 апартамента, разположени на четири жилищни и сутеренен етаж. Предлагат се надземни и подземни паркоместа за продажба.
Очакваме Вашето запитване
Ако желаете да организирате оглед на имот, който Ви интересува, или да посетите някой от нашите офиси, моля свържете се с нас. За да уговорите ден и час за среща или оглед, можете да се обадите на посочения в обявата телефон или да изпратите запитване чрез електронната поща. Нашият консултант ще Ви съдейства с всички необходими подробности и ще уговори удобно за Вас време.
Търсите подходящия за Вас имот?
Не се колебайте да се свържете с нас и да ни разкажете за Вашите нужди и предпочитания. Нашият екип ще проведе задълбочено проучване на пазара, ...
За повече информация свържете се с нас и цитирайте референтния номер на имота. Моля, кажете, че сте видeли обявата в този сайт.
Референтен номер: LXH-134176
Тел: 0888 360 754, 0554 57 087
Отговорен брокер:Екатерина Георгиева
Без комисиона от купувача
Виж всички обяви в luximmoburgas.bazar.bg или тук
        
       
         
         
         
         
         
             
             
             
             
            






