ОФЕРТА ( 8509 ) Бутикова сграда! След акт 14! ЛУКСОЗЕН КОМПЛЕКС! ПАРТЕРЕН с 18 кв.м. веранда! Акрона имоти представя 2 стаен апартамент, ситуиран в малка бутикова сграда, с ниско застрояване в района, в един от най-предпочитаните новоизграждащи се райони на града, в близост до всичко необходимо до Вашия бъдещ дом!
Етаж - 1 - от 4!
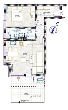
Квадратура - 84 кв.м.! 66 кв.м. площ на апартамента и 18 кв.м. - веранда!
Изложение - Юг-Запад!
Разпределение - Светъл просторен хол, с кът за хранене и кухненски кът, с излаз на просторна веранда, от която имате красива гледка към вътрешен двор с градинка, спалня, баня с тоалетна, килер, функционално входно антре!
Състояние - Апартаментът е довършен с висок клас материали от докозан строител! Общите части са ще бъдат луксозно завършени! Готов за довършителни работи и обзавеждане по избор на бъдещия собственик!
Локация - комуникативен район, в близост до магазини, спирки на градски транспорт, училища.
Паркинг - Имате възможност за закупуване на голям наземен гараж или паркомясто.
За повече информация или оглед се обадете на посочените телефони!
Работейки с нас, Вие получавате банково кредитиране при преференциални условия и цялостна юридическа проверка на имотите, които предлагаме.
Ние се стараем да осигурим пълна и завършена услуга на клиентите си, поради което си партнираме с един от водещите фирми в интериорния дизайн, ремонтните и транспортни дейности, почистването и обзавеждането, както и доказали се архитекти, геодезисти и конструктори, заедно с които можем да превърнем всяка ваша идея в реалност! Разгледайте пълния ни списък от оферти на www.acronaimoti.bg







