Агенция Център Естейт представя изключителна възможност за покупка на тристаен апартамент с двор в новостроящия се жилищен комплекс от затворен тип Кайлъка Гардънс Премиум. Комплексът съчетава уют, естетика и сигурност в тиха, зелена зона с удобен достъп до града.
📍 Локация
Разположен в комуникативна и тиха част на града, Кайлъка Гардънс Премиум предлага съвременно и балансирано градско ежедневие близо до всичко важно, но достатъчно отдалечено от шума.
🛏 За имота:
Тип: Двустаен апартамент
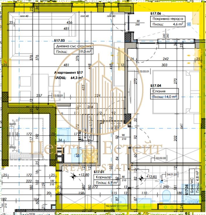
Входно антре 6.9 кв.м
Спалня : 14 кв.м
Дневна със столова 19 кв.м
Кухня 4.1 кв.м
Покривна тераса 4.6 кв.м
Баня с тоалетна
Застроена площ: 64.28 кв.м
Обща площ: 75.12 кв.м
Изложение: Север
Състояние при предаване: Машинна фина шпакловка, входна и монтирани интериорни врати
Височина на таваните: 3 метра за усещане за простор и светлина
Френски прозорци и слънчеви открити тераси
Възможност за закупуване на гараж или паркомясто
🌳 За комплекса:
Затворен тип с контролиран достъп и 24/7 видеонаблюдение
Ландшафтно проектирана градина с:
Детски кът
Зони за отдих беседки, пейки с перголи
Смарт поливна система
Стрийт фитнес
Подземен етаж с:
27 гаража от които 11 са двойни
28 паркоместа
63 мазета
✨ Защо да изберете Кайлъка Гардънс Премиум ?
Изтънчен архитектурен стил
Простор, зеленина и светлина
Перфектен баланс между градски удобства и спокойствие
Престиж, сигурност и дългосрочна стойност на инвестицията
📞 Свържете се с нас още днес, за да получите повече информация и организирате оглед. 0897 300 094 / 0877 762 332
'Център Естейт' Защото домът трябва да бъде повече от квадратура. Той трябва да бъде преживяване.
Код на оферта: 56
Виж всички обяви в centerestate.bazar.bg или тук







