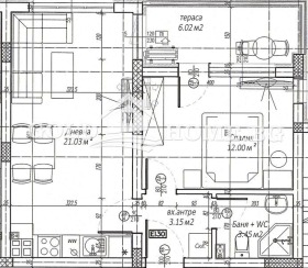
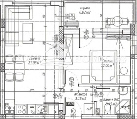
🏡 ''ГОЛД ИМОТИ'' представя за продажба двустаен апартамент в новостроящ се комплекс в кв. Беломорски с АКТ 14.
✅ Състои се от: Входно антре, хол с кухненски бокс, спалня, баня с тоалетна и тераса.
✅ Разположен на 5/5 етажа, което гарантира много светлина в жилището.
➡️Жилищата се издават с изградена ЕЛ-инсталация с монтирано табло, поставени ключове и контакти;
➡️ВиК е изпълнено до тапа с монтирани водомери;
➡️Домофонна и звънчева система, положени инсталации за кабелна телевизия и интернет.
➡️Дограмата е 5-камерна , двуцветна с двоен стъклопакет и мултифункционално стъкло;
➡️Монтирана входна блиндирана врата;
➡️Стените и таваните ще бъдат издадени на мазилка, а подът на замазка.
🚘Възможност за закупуване на паркомясто
➡️ ГОЛД ИМОТИ Ви предлага да се възползвате от професионално кредитно посредничествочрез Credit Center при ипотека, потребителски кредит и рефинансиране!
-УСЛУГАТА Е ИЗЦЯЛО БЕЗПЛАТНА!
-ИЗГОТВЯНЕ НА НЯКОЛКО ОФЕРТИ ОТ ВОДЕЩИ БАНКИ!
-НАЙ-ИЗГОДНИ УСЛОВИЯ СПРЯМО ВАШИЯТ ПРОФИЛ!
-НЕ Е НЕОБХОДИМО ДА СЕ РАЗКАРВАТЕ ВЪВ ВСЕКИ КЛОН НА РАЗЛИЧНИ БАНКИ!
➡️ За повече информация и при интерес за оглед, моля свържете се с нас: 0899 125 189.
Виж всички обяви в gold_imoti.bazar.bg или тук







