Представяме за продажба двустаен апартамент в модерна жилищна сграда в новоразвиващ се район - местност Мадика в Бургас, кв. 'Славейков'.
Старт на строителството - юли 2025 г.
Очакван Акт 16 - юли 2028 г.
Локацията е с развита инфраструктура, с отличен достъп и всичко необходимо за живеенето в близост, както и университет, магазини, фитнес, METRO, OMV, важните пътни артерии.
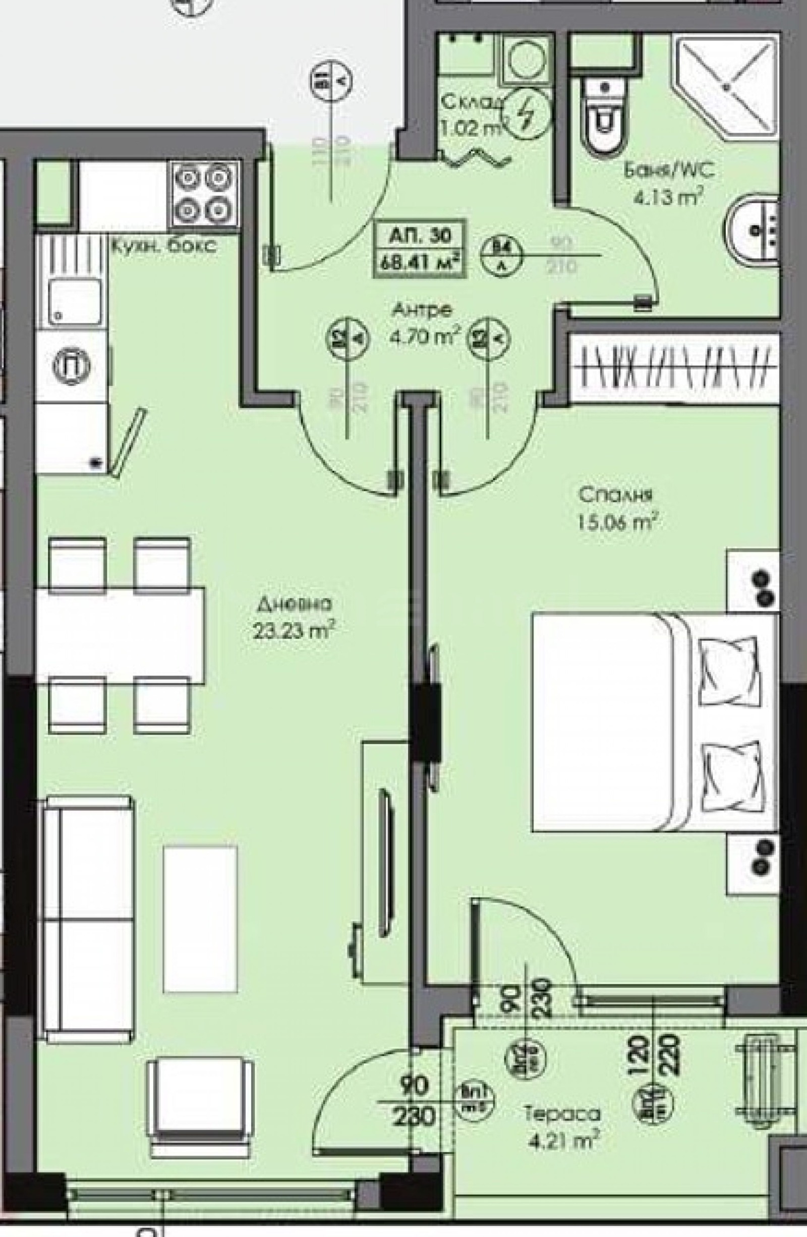
Имотът е с обща площ от 68,48 кв.м, разположен на 9-и етаж.
Разпределение:
антре;
дневна с кухня;
спалня;
баня с тоалет;
склад;
тераса с излаз от двете стаи.Издава се в степен на завършеност по БДС, на шпакловка и замазка.
Комплексът е със смесено предназначение, като на партера са предвидени търговски площи и офиси.
Строителството е предвидено по най-съвременни стандарти:
високо ниво на енергийна ефективност;
немска дишаща дограма с троен стъклопакет;
вътрешна отоплителна инсталация до отоплително тяло;
високотехнологични и модерни фасади;
енергиен клас А;
висококачествени довършителни материали.Очакваме Вашето запитване
Ако желаете да организирате оглед на имот, който Ви интересува, или да посетите някой от нашите офиси, моля свържете се с нас. За да уговорите ден и час за среща или оглед, можете да се обадите на посочения в обявата телефон или да изпратите запитване чрез електронната поща. Нашият консултант ще Ви съдейства с всички необходими подробности и ще уговори удобно за Вас време.
Търсите подходящия за Вас имот?
Не се колебайте да се свържете с нас и да ни разкажете за Вашите нужди и предпочитания. Нашият екип ще проведе задълбочено проучване на пазара, за да Ви предложи имоти, които точно отговарят на Вашите критерии. Разполагаме с изключително портфолио от висококачествени и ексклузивни жилища, които са достъпни само за нашите клиенти. За да сте първите, които ще получите информация за тях свържете се с нас.
Допълнителни ...
За повече информация свържете се с нас и цитирайте референтния номер на имота. Моля, кажете, че сте видeли обявата в този сайт.
Референтен номер: LXH-128277
Тел: +359 889 007 010
Моб: +359 877 777 888 (WhatsApp, Viber, SMS)
Отговорен брокер:Стоунхард ПРЕМИЪР
Без комисиона от купувача
Виж всички обяви в stonehardbg.bazar.bg или тук







