Референтен номер: STO-128793
Стартирало строителство на 'Белведере 2'! Очаквано завършване - 01.2027 г.
Ексклузивно представяме за продажба двустаен апартамент в нова сграда на популярния комплекс Belvedere Holiday Club в Банско.
Новопостроеният и вече напълно функциониращ 'Белведере Холидей Клуб' e изключителен ваканционен комплекс от висока класа, едно от най-добрите планински места за отдих в България! Комплексът е от затворен тип, състоящ се от функционални апартаменти и допълнен от превъзходни удобства и съоръжения за отдих и развлечение. Намира се в новата модерна зона на Банско, само на около 400 м от кабинковия лифт и в непосредствена близост до новия шопинг център Mall of Bansko.
Предстоящата нова сграда предлага атрактивна съвременна вентилируема фасада с HPL, в традиционните цветове на комплекса, разпределена е на 5 етажа с два входа - 'А' и 'Б', с модерен асансьор. Предлага избор от просторни студиа, двустайни и тристайни апартаменти.
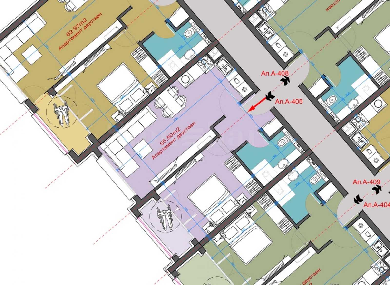
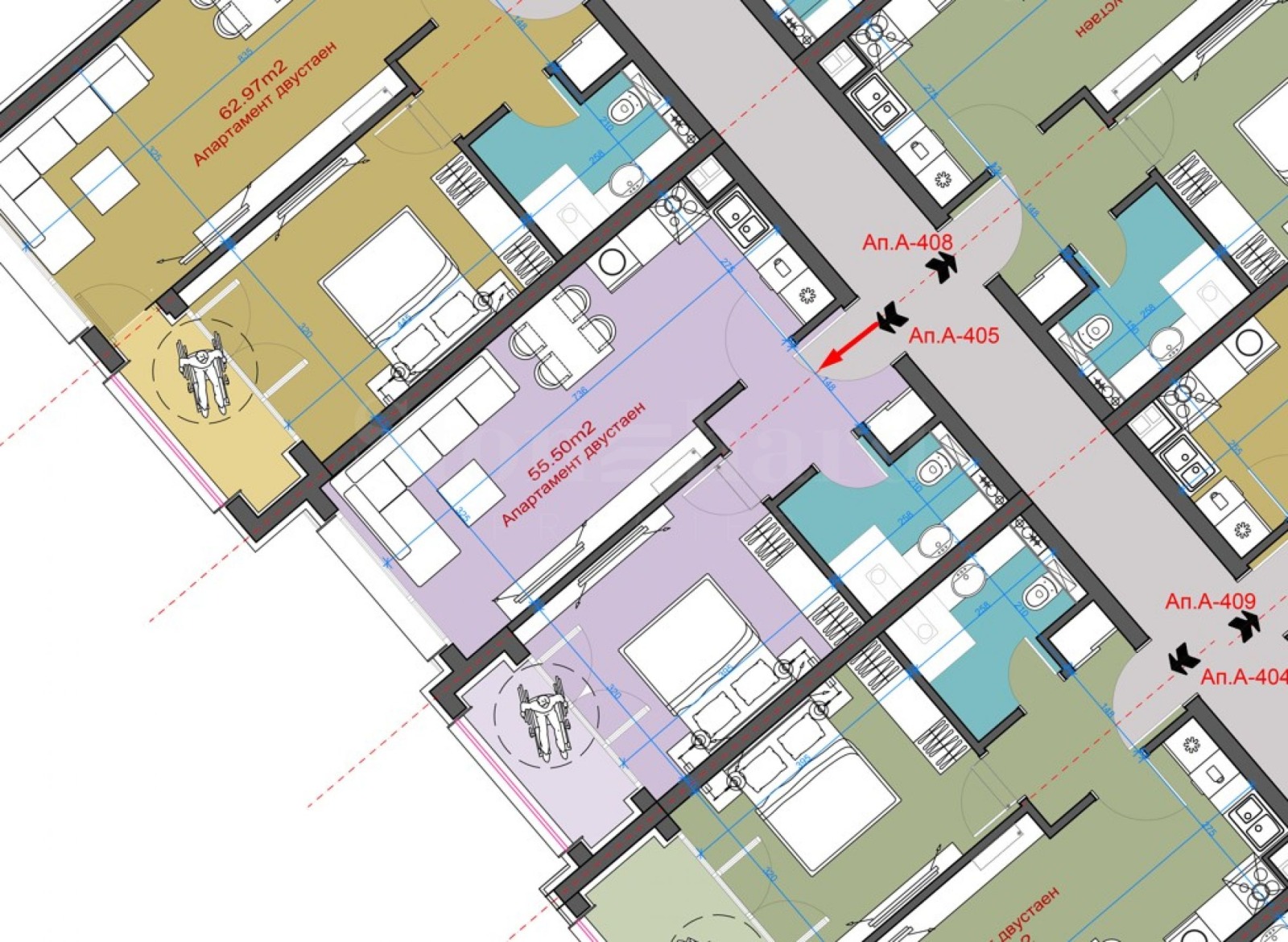
Предлаганият двустаен апартамент е с обща площ от 64.70 кв.м (нетна площ 55.19 кв.м + общи части 9.51 кв.м), разположен е на 4-ти етаж и се издава в степен на завършеност 'до ключ'.
Довършителни работи:
инсталации за отводняване на водата от климатиците - сплит и мултисплит система;
под - висококачествен ламинат и гранитогрес в коридор и кухненската част;
бани завършени, с бойлер, гранитогрес;
стени - тухли Wienerberger, вътрешни стени - тухла 25 см;
тавани - гипсова шпакловка с алуминиеви ъгли;
боя латекс - бяло;
дограма PVC - 5-камерен профил, цвят графит отвън, вътре бяло, троен стъклопакет;
парапети - метални;
врати - входни;
интериорни врати.
Технически характеристики на сградата:
облицовка - вентилируема фасада с HPL;
алуминиеви рамки на прозорците;
12 см ...
Цената на имота е 80 875 евро / 158 177.75 лв. без ДДС или 97 050 евро / 189 813.30 лв. с ДДС. Данъчен кредит може да се ползва при определени условия.
За повече информация свържете се с нас и цитирайте референтния номер на имота. Моля, кажете, че сте видeли обявата в този сайт.
Референтен номер: STO-128793
Тел: +359 889 007 010
Моб: +359 877 777 888 (WhatsApp, Viber, SMS)
Отговорен брокер:Стоунхард ПРЕМИЪР



