Ексклузивно представяме за продажба двустаен апартамент 4.32 в сграда S-Tower - нов проект с отличителен дизайн, висок клас на изпълнение, комуникативна локация и отлична възможност за инвестиция. Проектът е дело на арх. Ангел Захариев и неговия екип, печелили неведнъж престижната награда 'Сграда на годината'. Кулата е с изключителна визия и ще се превърне в емблема за столицата ни.
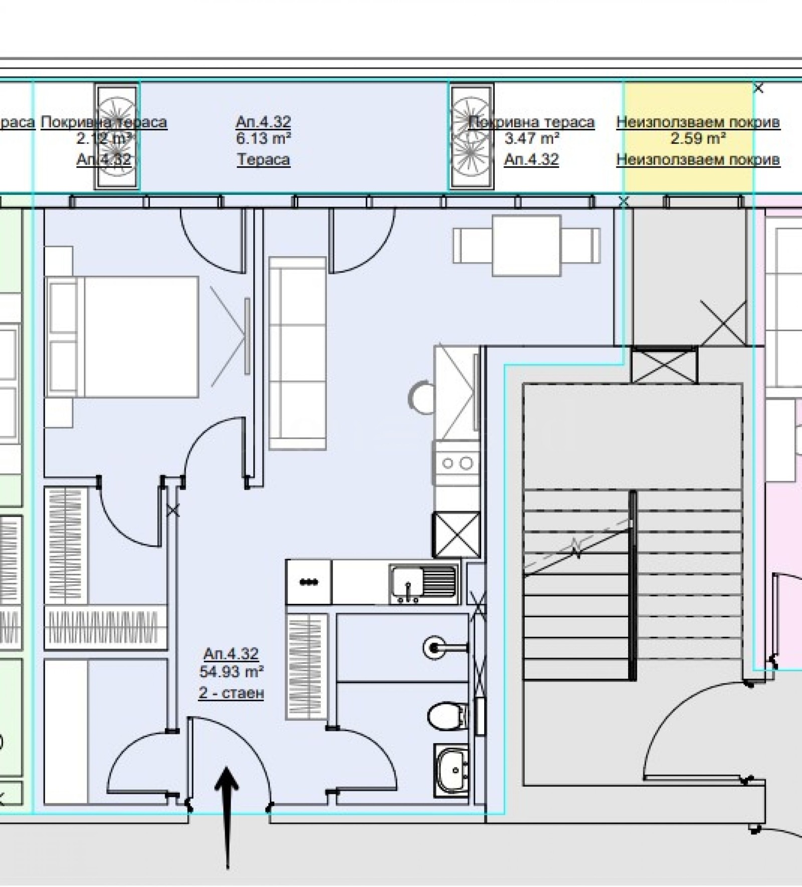
Апартаментът е ситуиран на 4-ти етаж от общо 15 и предлага обща площ 80.23 кв.м (нетна площ 61.06 кв.м + общи части 14.03 кв.м), с покривни тераси с площ от 5.59 кв.м и мазе от 5.59 кв.м.
Разпределение:
антре, склад, баня с тоалетна;
една спалня;
просторна дневна с кухня;
тераса с излаз от двете стаи. Срок на завършване пролетта на 2027 г.
S-Tower e разположена на бул. 'Г.М. Димитров' - един от емблематичните за нашия град булеварди, на който се извисяват множество ключови за София сгради - бизнес сгради от клас А, магазини, четиризвездния бизнес хотел 'Вега', един от най-добрите СПА центрове в столицата ни - Este Fitness & SPA. Апартаментите в района са с много добра възвращаемост и с високи наемни цени, което прави инвестицията в недвижими имоти в района сигурна и печеливша.
S-Tower е многофункционална сграда със 104 луксозни апартамента, 2 впечатляващи пентхауса, 6 офиса, ресторант и 3 магазина. Дизайнът е футуристичен, с разчупени форми и окачена стъклена фасада, изцяло изпълнена с алуминиеви елементи в цвят розово злато. Всички общи части са решени в елегантен и модерен стил, а за лобито инвеститорът предвижда луксозно довършване и 3D мапинг ефект. В строителството ще се използват материали от най-висок клас, осигуряващи дълговечност и лесна поддръжка на сградата във времето, а свободните ...
Цената на имота е 196 554 евро / 384 426.21 лв. без ДДС или 235 864 евро / 461 311.45 лв. с ДДС. Данъчен кредит може да се ползва при определени условия.
За повече информация свържете се с нас и цитирайте референтния номер на имота. Моля, кажете, че сте видeли обявата в този сайт.
Референтен номер: SOF-127848
Тел: +359 889 007 010
Моб: +359 877 777 888 (WhatsApp, Viber, SMS)
Отговорен брокер:Стоунхард ПРЕМИЪР
Без комисиона от купувача
Виж всички обяви в stonehard.bazar.bg или тук







