РЕФ:1108
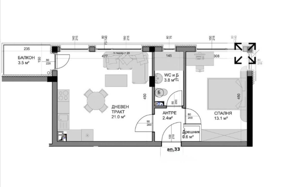
Хоумпойнт Ви предлага Двустаен апартамент с АКТ-14, БЕЗ КОМИСИОННА от купувача в един от най-предпочитаните за живеене райони на Варна ж.к.Владиславово. Комплекса Фюжън-1 е от ново поколение. Пространствата около комплекса са създадени с внимание към детайла, с пешеходни алеи, зелени площи и зони за отдих, които допринасят към усещането за уют и хармония.Скоро ще има и АКТ-15.Към апартамента има и Паркомясто на цена от 16 000 евро.
За повече информация и огледи се свържете с нас. Брокер Веселин Йорданов тел: 0899 889 109
ХОУМПОЙНТ съдейства с всички необходими юридически и технически проверки на имота, организира всички етапи на сделката до нейното финализиране с нотариалното прехвърляне на имота.
ХОУМПОЙНТ съдейства за отпускане на банков кредит при възможно най-добри условия за клиента!



